4-комнатная квартира, 109.40 м² 1/17 этаж ID объекта 100120541
Воронеж, Загоровского ул., д. 5/1
Инфраструктура поблизости
Цена за наличные:
10 079 800 ₽
92 137 ₽/м²
Базовая цена:
12 581 000 ₽
Семейная ипотека
от 48 347 ₽/мес
Ипотека
от 117 905 ₽/мес
? Расчет цены приблизительный, за более точной информацией обращайтесь к менеджеру
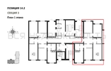
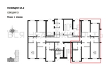
КорпусПозиция 14.2
Срок сдачи3 кв 2026
Тип домаМонолитно-блочный
Этаж1/17
№ Квартиры152
Тип сделкиПервичная продажа
Общая площадь109.40 м²
Строительная площадь109.40 м²
Жилая площадь63.50 м²
Площадь кухни13.40 м²
Высота потолков2.55 м
ОтделкаЧистовая отделка
Покрытие полаЛаминат
СанузелНесколько
БалконНет
КладовкаНет
ЛифтДа
Изолированные комнатыДа
Онлайн показДа



