Квартиры-студии, 16.72 м² 15/15 этаж ID объекта 100121259
Воронеж, Ростовская ул., д. 18а
Инфраструктура поблизости
Базовая цена:
2 230 448 ₽
142 339 ₽/м²
Семейная ипотека
от 10 698 ₽/мес
Ипотека
от 26 090 ₽/мес
? Расчет цены приблизительный, за более точной информацией обращайтесь к менеджеру
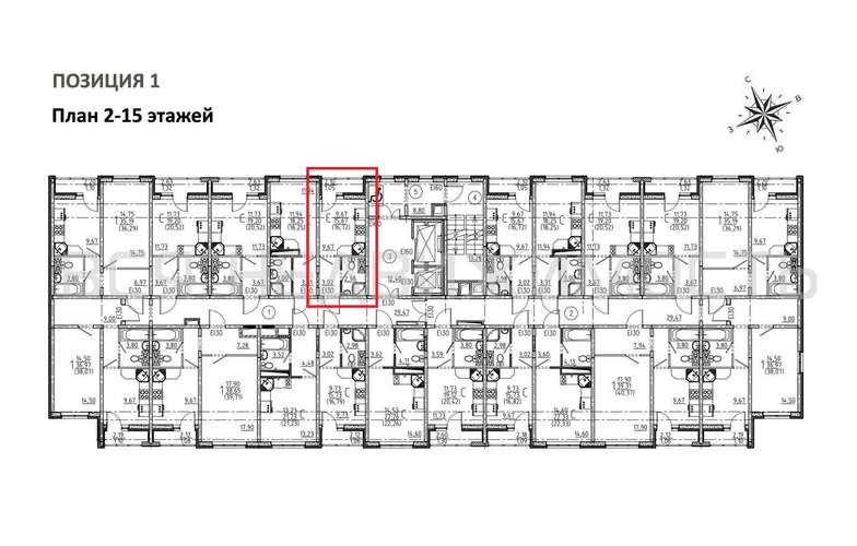
КорпусЭтап 2 позиция 1
Срок сдачи4 кв 2025
Тип домаМонолитный
Этаж15/15
№ Квартиры216А
Тип сделкиПервичная продажа
Общая площадь15.67 м²
Строительная площадь16.72 м²
Жилая площадь9.67 м²
Площадь кухни2.00 м²
ОтделкаЧерновая отделка
СанузелСовмещенный
КладовкаНет
ЛифтДа
Изолированные комнатыДа
Онлайн показДа



