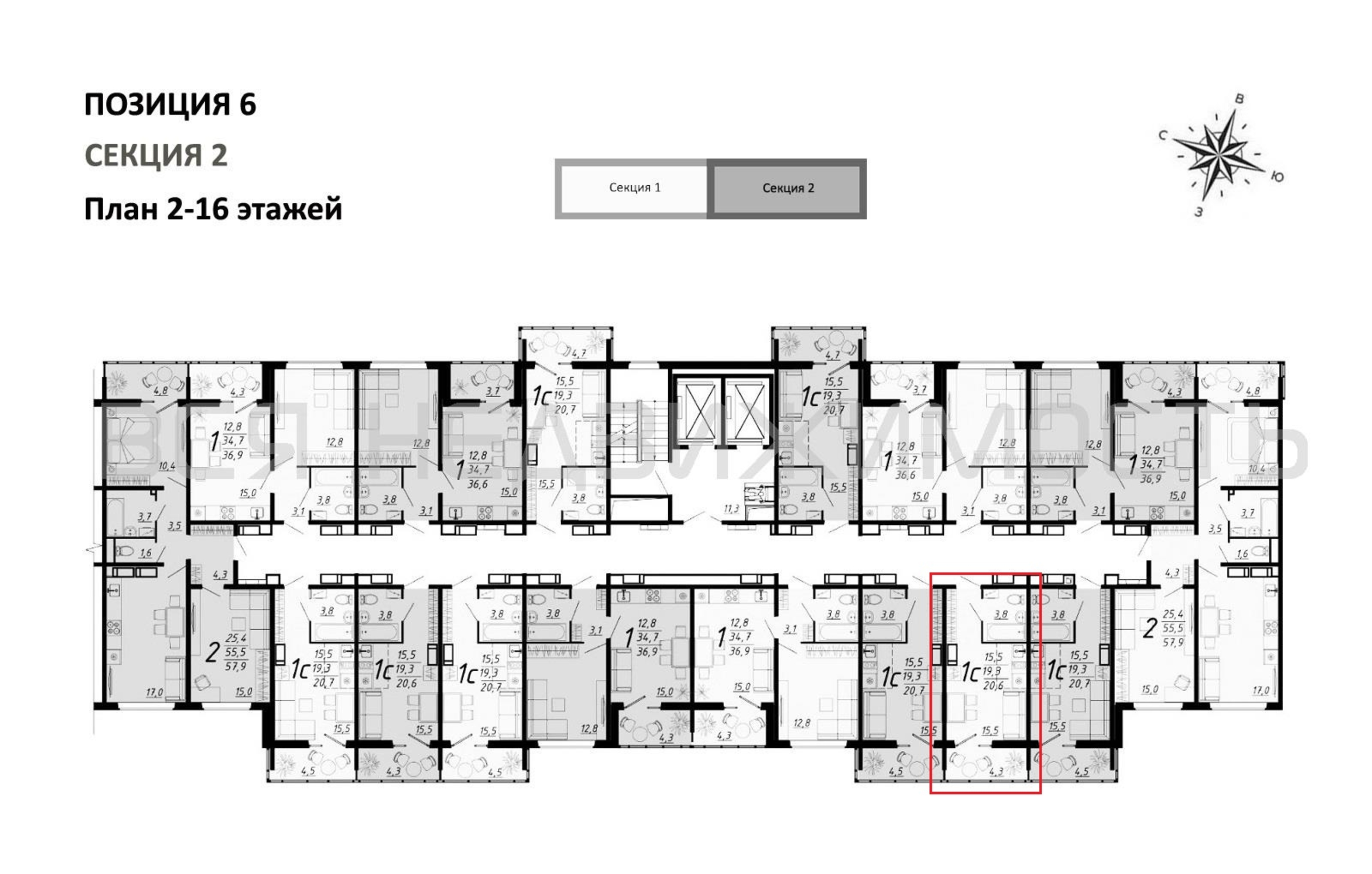
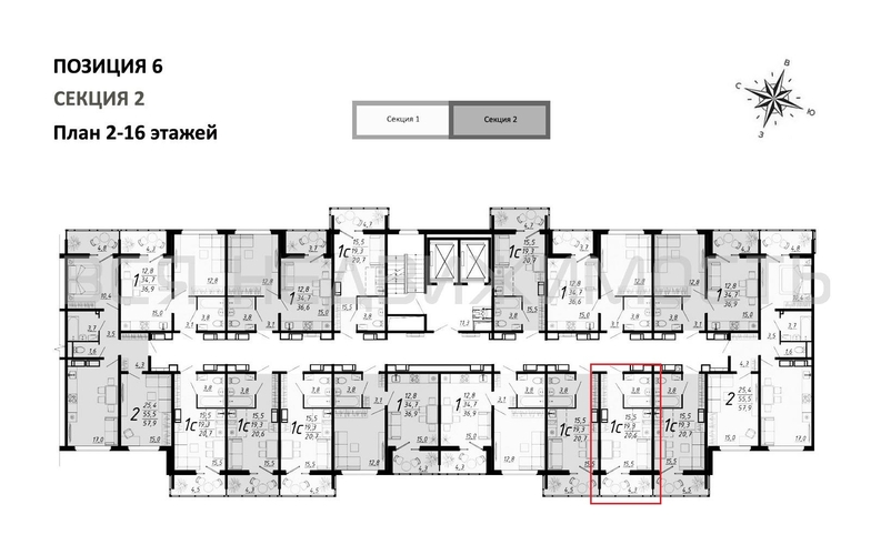
Квартиры-студии, 20.60 м² 7/17 этаж ID объекта 100123198
Воронеж, Труда пр-кт, д. 93
Инфраструктура поблизости
Цена за наличные:
3 776 921 ₽
195 695 ₽/м²
Базовая цена:
4 379 559 ₽
Семейная ипотека
от 18 116 ₽/мес
Ипотека
от 44 179 ₽/мес
? Расчет цены приблизительный, за более точной информацией обращайтесь к менеджеру
Тип сделкиПервичная продажа
Общая площадь19.30 м²
Строительная площадь20.60 м²
Жилая площадь15.50 м²
Площадь кухни2.00 м²
Высота потолков2.60 м
ОтделкаЧистовая отделка
Покрытие полаЛаминат
СанузелСовмещенный
БалконБалкон
КладовкаНет
ЛифтДа
Изолированные комнатыДа
Онлайн показДа



