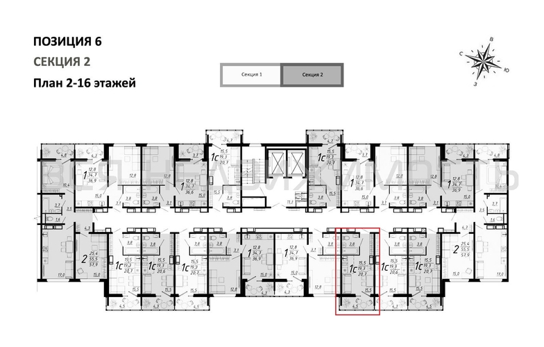
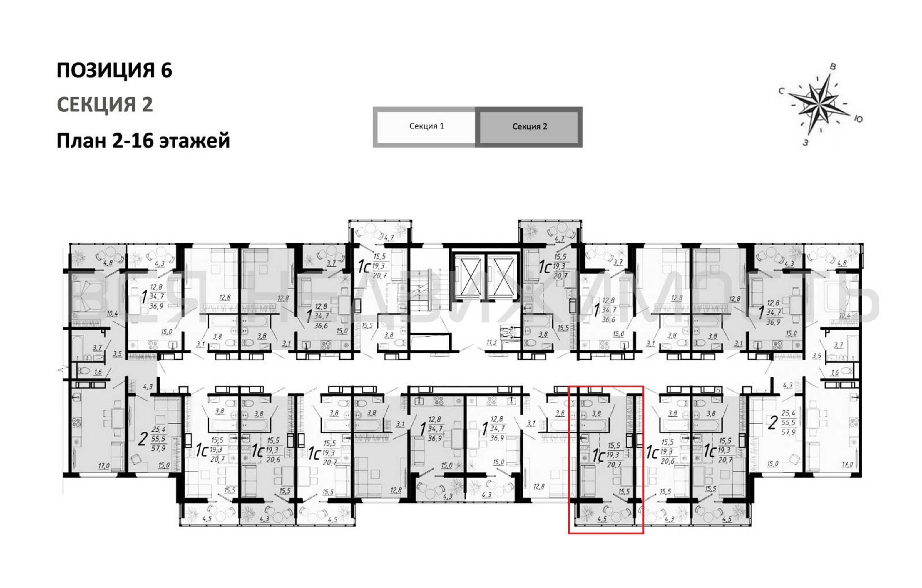
Квартиры-студии, 20.70 м² 14/17 этаж ID объекта 100123311
Воронеж, Труда пр-кт, д. 93
Инфраструктура поблизости
Цена за наличные:
3 881 544 ₽
201 116 ₽/м²
Базовая цена:
4 501 214 ₽
Семейная ипотека
от 18 617 ₽/мес
Ипотека
от 45 403 ₽/мес
? Расчет цены приблизительный, за более точной информацией обращайтесь к менеджеру
КорпусПозиция 6
Срок сдачи4 кв 2026
Тип домаПанельный
Этаж14/17
№ Квартиры485
Тип сделкиПервичная продажа
Общая площадь19.30 м²
Строительная площадь20.70 м²
Жилая площадь15.50 м²
Площадь кухни2.00 м²
Высота потолков2.60 м
ОтделкаЧистовая отделка
Покрытие полаЛаминат
СанузелСовмещенный
БалконБалкон
КладовкаНет
ЛифтДа
Изолированные комнатыДа
Онлайн показДа



