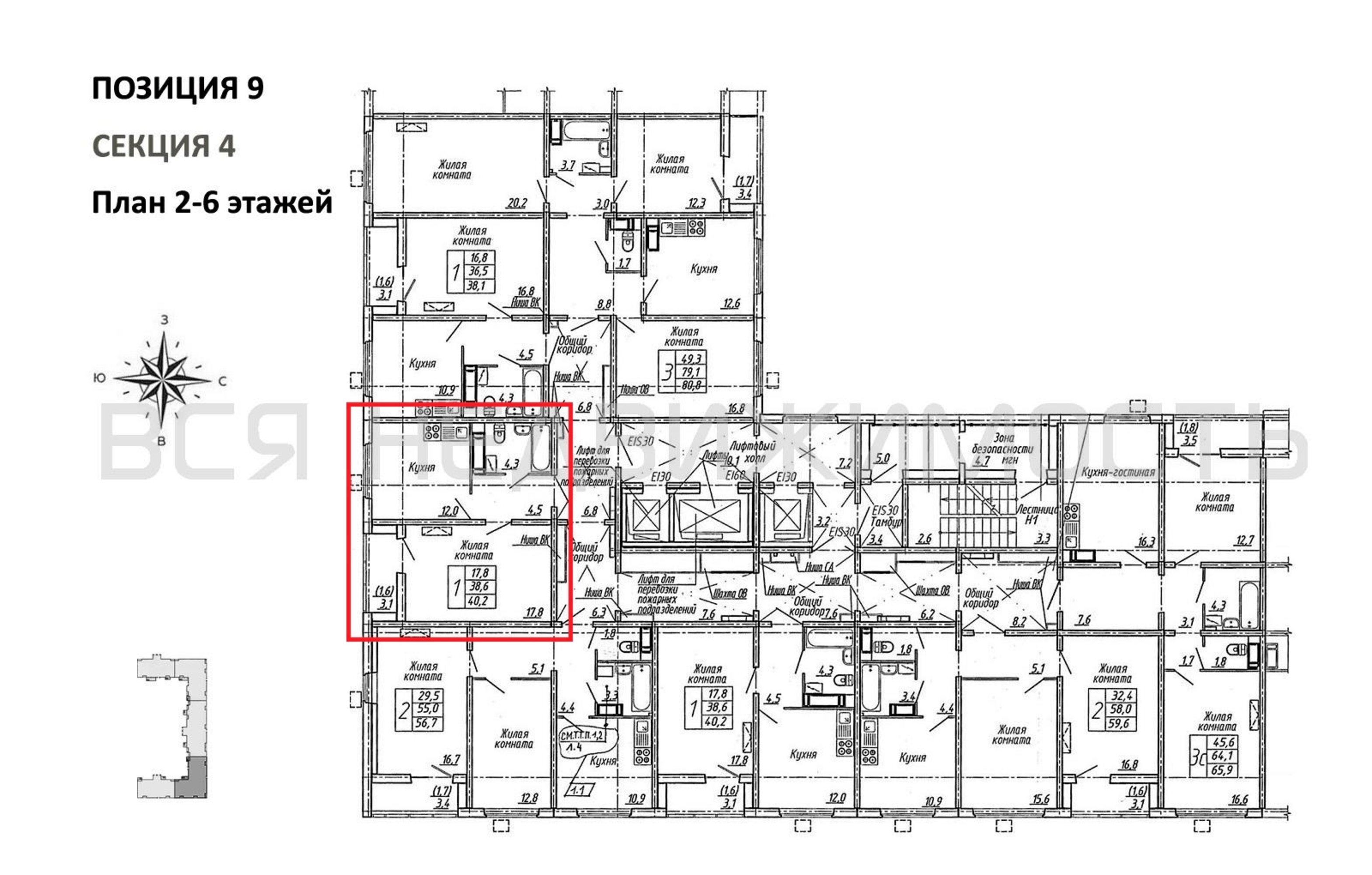
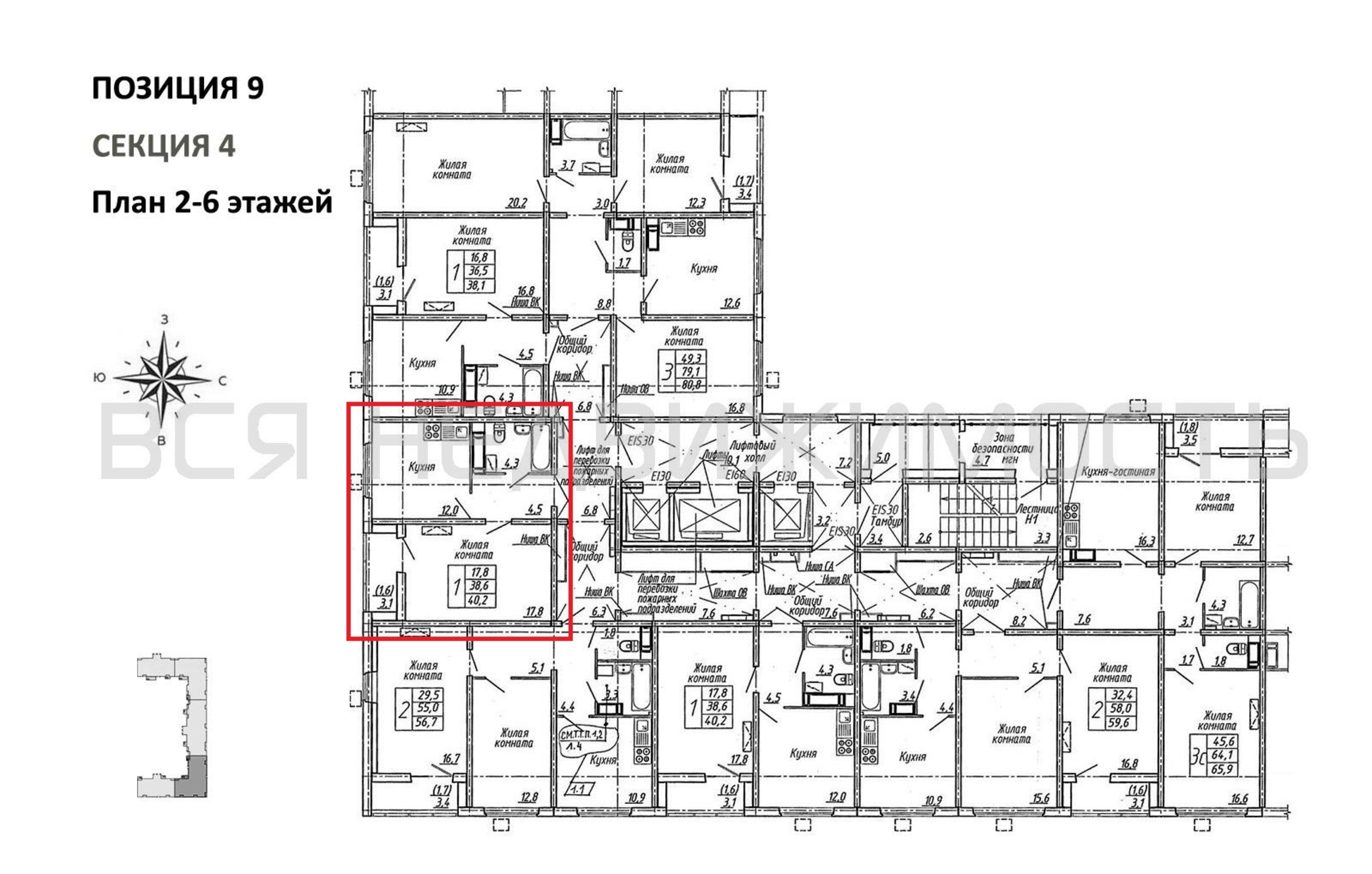
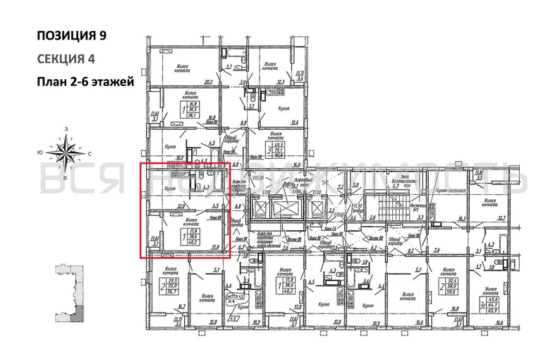
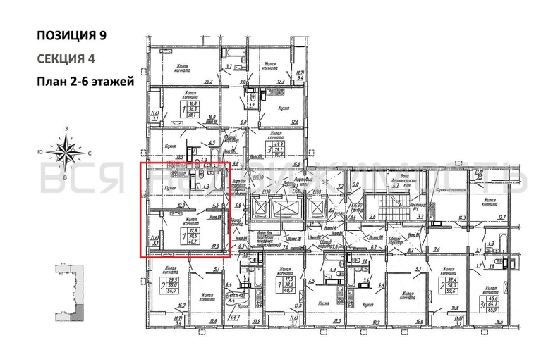
1-комнатная квартира, 40.20 м² 4/19 этаж ID объекта 100123924
Воронеж, Ломоносова ул., д. 129
Инфраструктура поблизости
Цена за наличные:
6 001 827 ₽
155 488 ₽/м²
Базовая цена:
6 966 659 ₽
Семейная ипотека
от 28 787 ₽/мес
Ипотека
от 70 204 ₽/мес
? Расчет цены приблизительный, за более точной информацией обращайтесь к менеджеру
КорпусПозиция 9
Срок сдачи2 кв 2027
Тип домаПанельный
Этаж4/19
№ Квартиры397
Тип сделкиПервичная продажа
Общая площадь38.60 м²
Строительная площадь40.20 м²
Жилая площадь17.80 м²
Площадь кухни12.00 м²
Высота потолков2.60 м
ОтделкаЧистовая отделка
Покрытие полаЛаминат
СанузелСовмещенный
КладовкаНет
ЛифтДа
Изолированные комнатыДа
Онлайн показДа



