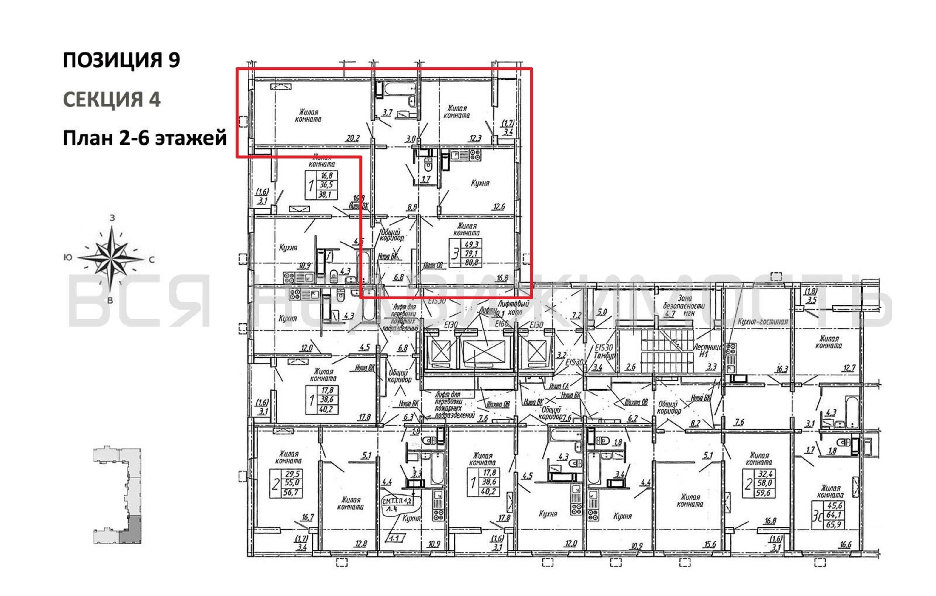
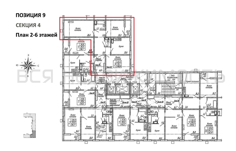
3-комнатная квартира, 80.80 м² 4/19 этаж ID объекта 100123926
Воронеж, Ломоносова ул., д. 129
Инфраструктура поблизости
Цена за наличные:
10 329 468 ₽
130 587 ₽/м²
Базовая цена:
11 998 800 ₽
Семейная ипотека
от 49 544 ₽/мес
Ипотека
от 120 825 ₽/мес
? Расчет цены приблизительный, за более точной информацией обращайтесь к менеджеру
КорпусПозиция 9
Срок сдачи2 кв 2027
Тип домаПанельный
Этаж4/19
№ Квартиры399
Тип сделкиПервичная продажа
Общая площадь79.10 м²
Строительная площадь80.80 м²
Жилая площадь49.30 м²
Площадь кухни12.60 м²
Высота потолков2.60 м
ОтделкаЧистовая отделка
Покрытие полаЛаминат
СанузелРаздельный
КладовкаНет
ЛифтДа
Изолированные комнатыДа
Онлайн показДа



