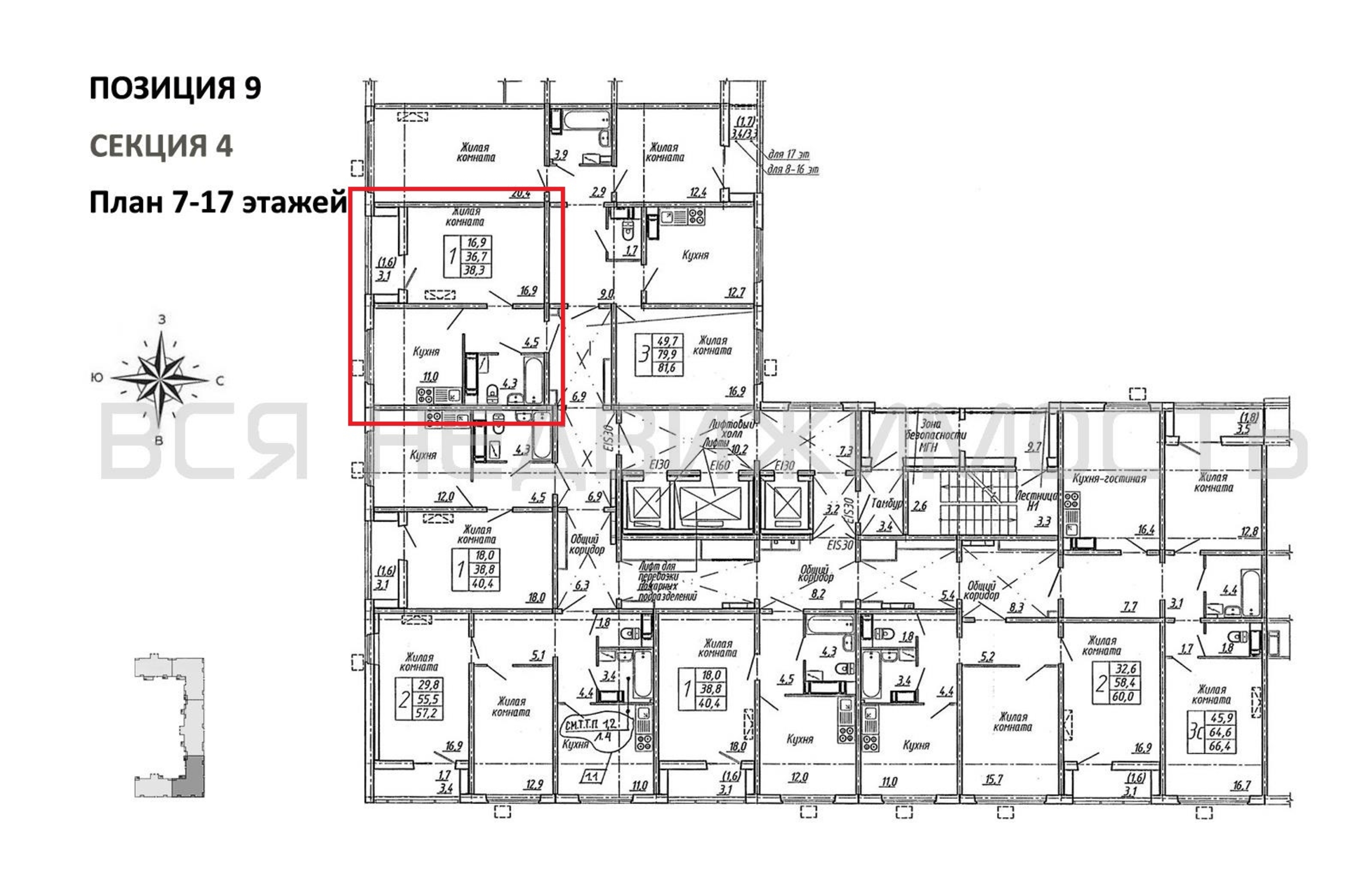
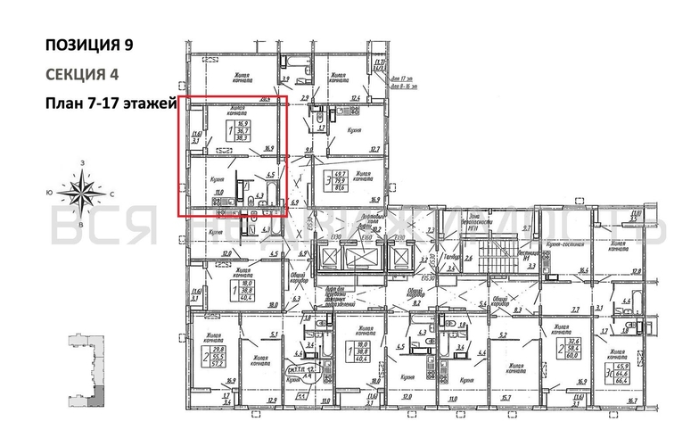
1-комнатная квартира, 38.30 м² 8/19 этаж ID объекта 100123953
Воронеж, Ломоносова ул., д. 129
Инфраструктура поблизости
Цена за наличные:
5 735 124 ₽
156 270 ₽/м²
Базовая цена:
6 656 540 ₽
Семейная ипотека
от 27 508 ₽/мес
Ипотека
от 67 084 ₽/мес
? Расчет цены приблизительный, за более точной информацией обращайтесь к менеджеру
КорпусПозиция 9
Срок сдачи2 кв 2027
Тип домаПанельный
Этаж8/19
№ Квартиры426
Тип сделкиПервичная продажа
Общая площадь36.70 м²
Строительная площадь38.30 м²
Жилая площадь16.90 м²
Площадь кухни11.00 м²
Высота потолков2.60 м
ОтделкаЧистовая отделка
Покрытие полаЛаминат
СанузелСовмещенный
КладовкаНет
ЛифтДа
Изолированные комнатыДа
Онлайн показДа



