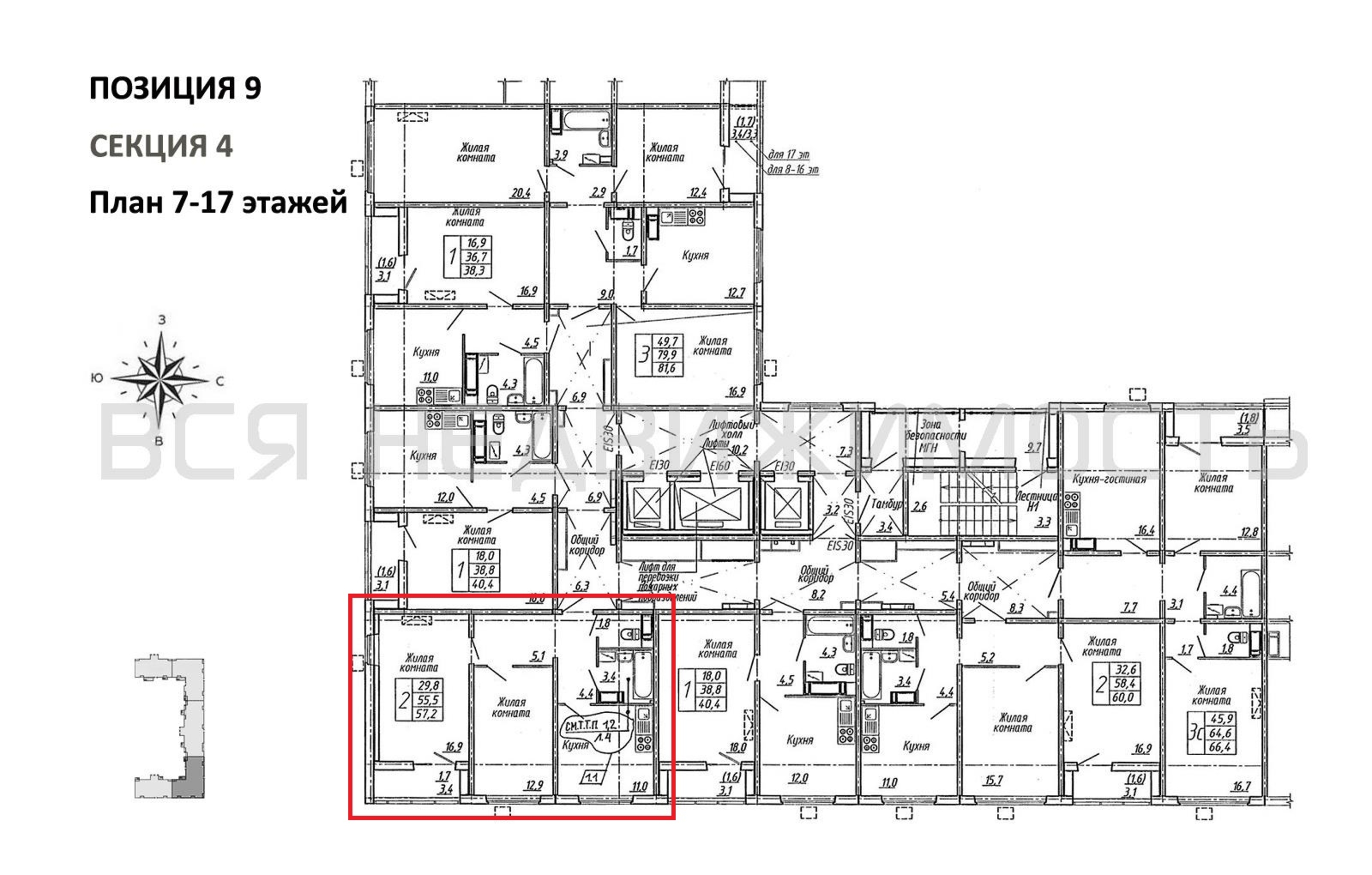
2-комнатная квартира, 57.20 м² 12/19 этаж ID объекта 100123979
Воронеж, Ломоносова ул., д. 129
Инфраструктура поблизости
Цена за наличные:
8 043 553 ₽
144 929 ₽/м²
Базовая цена:
9 340 759 ₽
Семейная ипотека
от 38 580 ₽/мес
Ипотека
от 94 086 ₽/мес
? Расчет цены приблизительный, за более точной информацией обращайтесь к менеджеру
КорпусПозиция 9
Срок сдачи2 кв 2027
Тип домаПанельный
Этаж12/19
№ Квартиры452
Тип сделкиПервичная продажа
Общая площадь55.50 м²
Строительная площадь57.20 м²
Жилая площадь29.80 м²
Площадь кухни11.00 м²
Высота потолков2.60 м
ОтделкаЧистовая отделка
Покрытие полаЛаминат
СанузелРаздельный
КладовкаНет
ЛифтДа
Изолированные комнатыДа
Онлайн показДа



