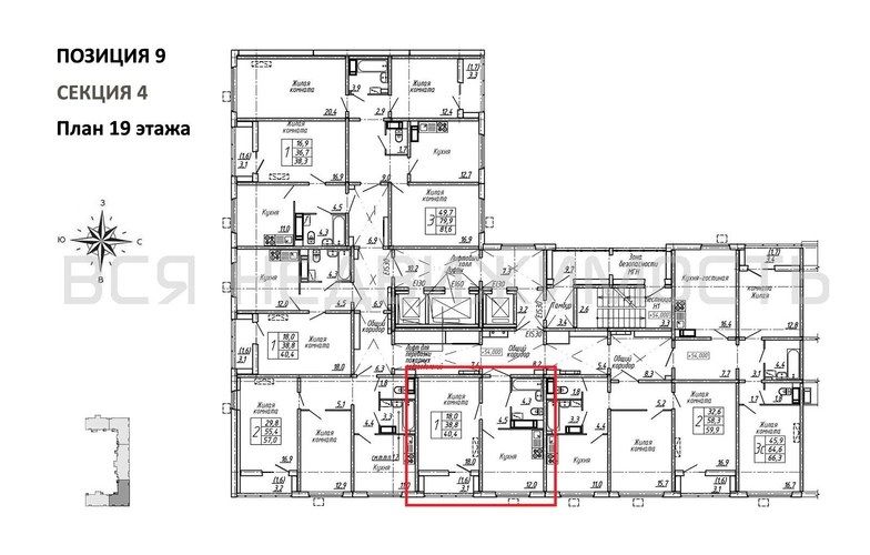
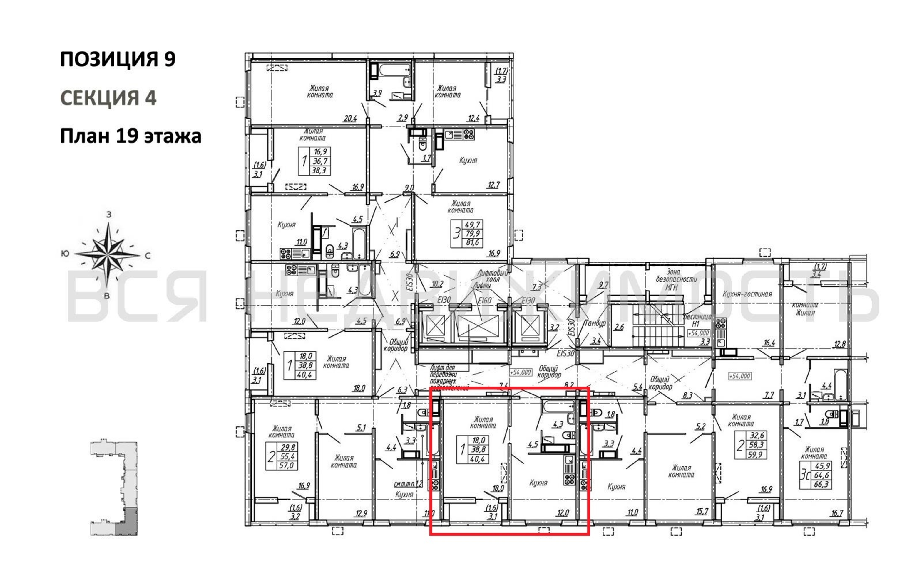
1-комнатная квартира, 40.40 м² 19/19 этаж ID объекта 100124027
Воронеж, Ломоносова ул., д. 129
Инфраструктура поблизости
Цена за наличные:
5 910 031 ₽
152 320 ₽/м²
Базовая цена:
6 859 920 ₽
Семейная ипотека
от 28 347 ₽/мес
Ипотека
от 69 130 ₽/мес
? Расчет цены приблизительный, за более точной информацией обращайтесь к менеджеру
КорпусПозиция 9
Срок сдачи2 кв 2027
Тип домаПанельный
Этаж19/19
№ Квартиры500
Тип сделкиПервичная продажа
Общая площадь38.80 м²
Строительная площадь40.40 м²
Жилая площадь18.00 м²
Площадь кухни12.00 м²
Высота потолков2.60 м
ОтделкаЧистовая отделка
Покрытие полаЛаминат
СанузелСовмещенный
КладовкаНет
ЛифтДа
Изолированные комнатыДа
Онлайн показДа



