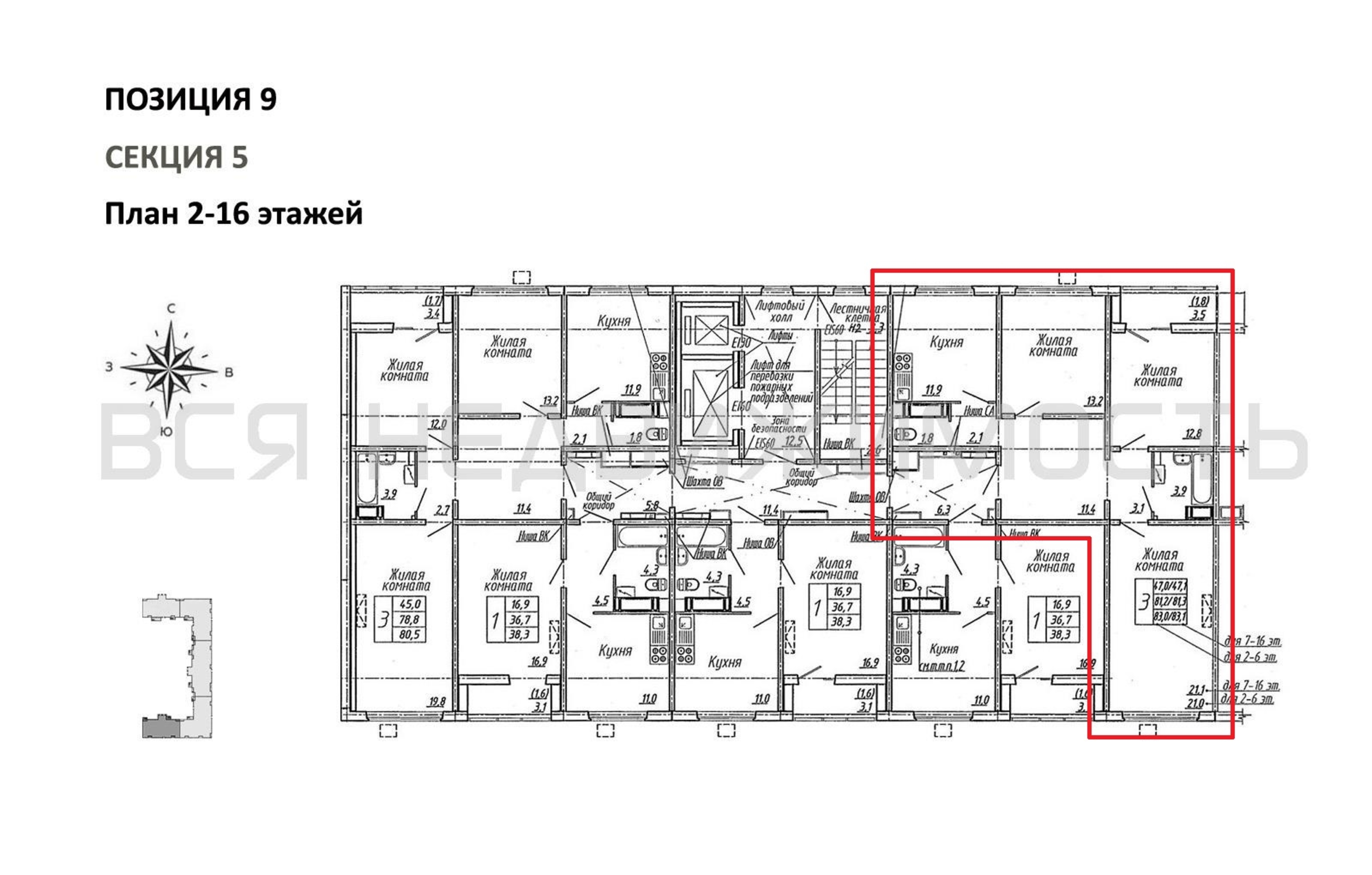
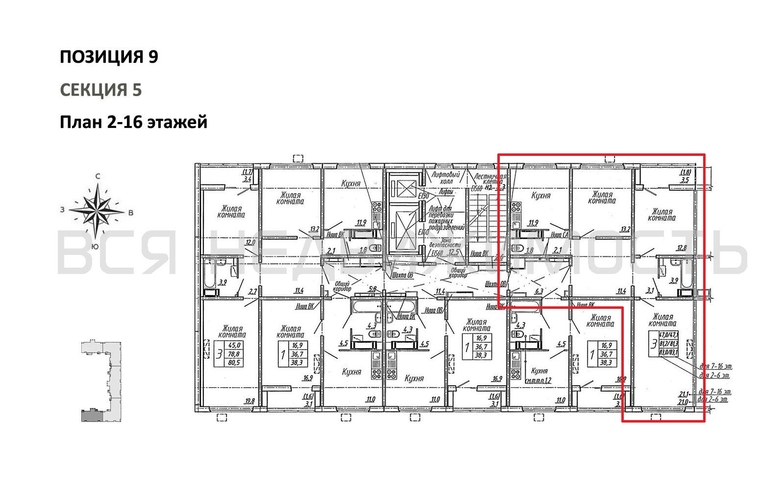
3-комнатная квартира, 83.00 м² 4/17 этаж ID объекта 100124046
Воронеж, Ломоносова ул., д. 129
Инфраструктура поблизости
Цена за наличные:
10 610 430 ₽
130 670 ₽/м²
Базовая цена:
12 325 500 ₽
Семейная ипотека
от 50 892 ₽/мес
Ипотека
от 124 112 ₽/мес
? Расчет цены приблизительный, за более точной информацией обращайтесь к менеджеру
КорпусПозиция 9
Срок сдачи2 кв 2027
Тип домаПанельный
Этаж4/17
№ Квартиры519
Тип сделкиПервичная продажа
Общая площадь81.20 м²
Строительная площадь83.00 м²
Жилая площадь47.00 м²
Площадь кухни11.90 м²
Высота потолков2.60 м
ОтделкаЧистовая отделка
Покрытие полаЛаминат
СанузелРаздельный
КладовкаНет
ЛифтДа
Изолированные комнатыДа
Онлайн показДа



