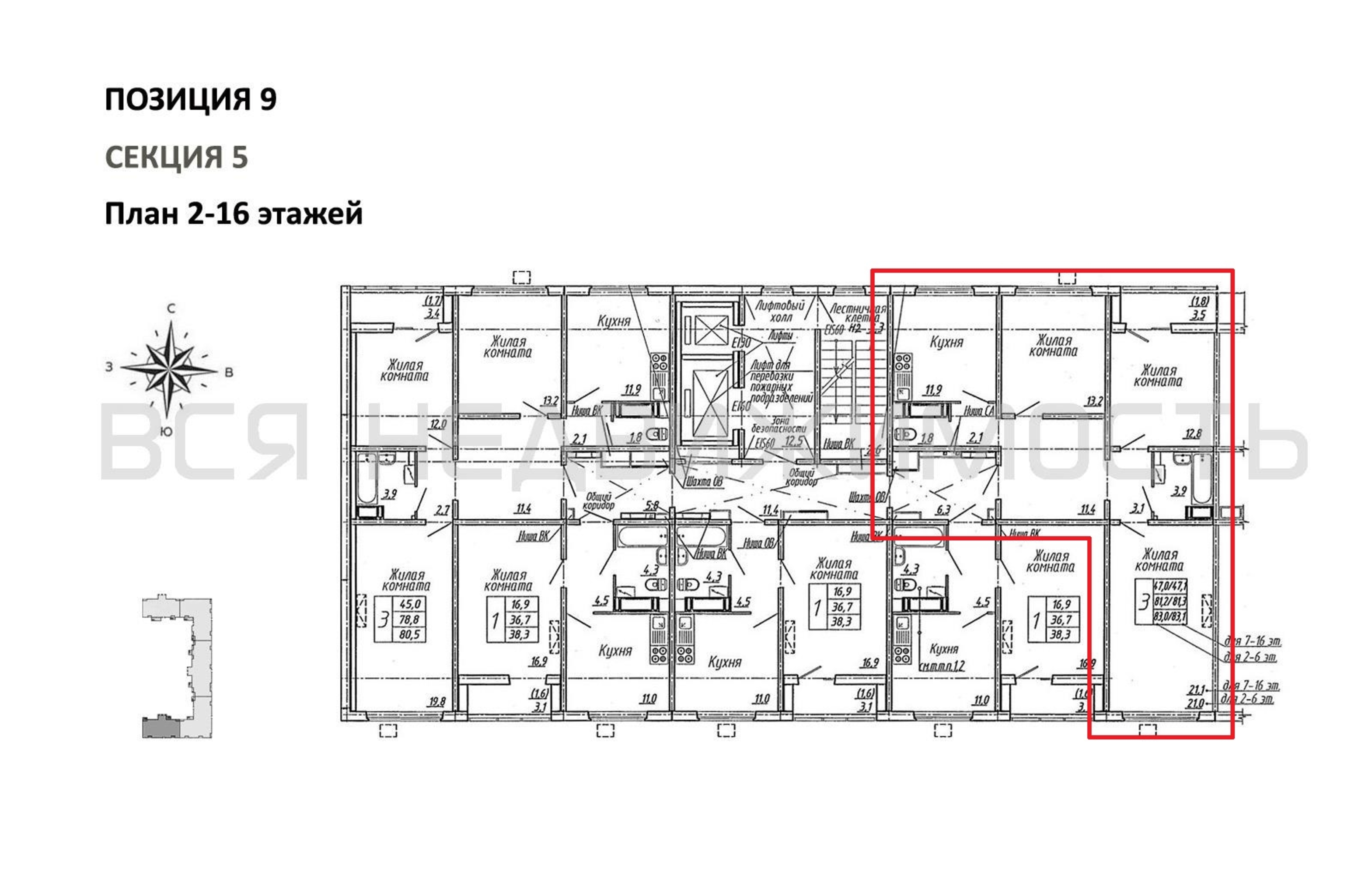
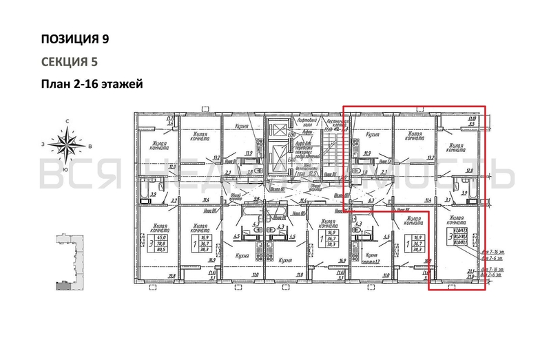
3-комнатная квартира, 83.10 м² 10/17 этаж ID объекта 100124076
Воронеж, Ломоносова ул., д. 129
Инфраструктура поблизости
Цена за наличные:
10 648 214 ₽
130 974 ₽/м²
Базовая цена:
12 369 435 ₽
Семейная ипотека
от 51 073 ₽/мес
Ипотека
от 124 554 ₽/мес
? Расчет цены приблизительный, за более точной информацией обращайтесь к менеджеру
КорпусПозиция 9
Срок сдачи2 кв 2027
Тип домаПанельный
Этаж10/17
№ Квартиры549
Тип сделкиПервичная продажа
Общая площадь81.30 м²
Строительная площадь83.10 м²
Жилая площадь47.10 м²
Площадь кухни11.90 м²
Высота потолков2.60 м
ОтделкаЧистовая отделка
Покрытие полаЛаминат
СанузелРаздельный
КладовкаНет
ЛифтДа
Изолированные комнатыДа
Онлайн показДа



