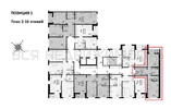
1-комнатная квартира, 46.60 м² 2/16 этаж ID объекта 100124353
Воронеж, Конструкторов ул., д. 29а
Инфраструктура поблизости
Цена за наличные:
7 063 876 ₽
157 325 ₽/м²
Базовая цена:
8 201 600 ₽
Семейная ипотека
от 33 881 ₽/мес
Ипотека
от 82 627 ₽/мес
? Расчет цены приблизительный, за более точной информацией обращайтесь к менеджеру
КорпусЭтап 2 Позиция 1
Срок сдачи4 кв 2027
Тип домаПанельный
Этаж2/16
№ Квартиры2
Тип сделкиПервичная продажа
Общая площадь44.90 м²
Строительная площадь46.60 м²
Жилая площадь12.00 м²
Площадь кухни15.00 м²
Высота потолков3.00 м
ОтделкаЧистовая отделка
Покрытие полаЛаминат
СанузелРаздельный
КладовкаНет
ЛифтДа
Изолированные комнатыДа
Онлайн показДа



