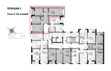
3-комнатная квартира, 82.80 м² 4/16 этаж ID объекта 100124371
Воронеж, Конструкторов ул., д. 29а
Инфраструктура поблизости
Цена за наличные:
11 403 780 ₽
140 441 ₽/м²
Базовая цена:
13 248 000 ₽
Семейная ипотека
от 54 697 ₽/мес
Ипотека
от 133 392 ₽/мес
? Расчет цены приблизительный, за более точной информацией обращайтесь к менеджеру
КорпусЭтап 2 Позиция 1
Срок сдачи4 кв 2027
Тип домаПанельный
Этаж4/16
№ Квартиры20
Тип сделкиПервичная продажа
Общая площадь81.20 м²
Строительная площадь82.80 м²
Жилая площадь50.80 м²
Площадь кухни12.70 м²
Высота потолков3.00 м
ОтделкаЧистовая отделка
Покрытие полаЛаминат
СанузелРаздельный
КладовкаНет
ЛифтДа
Изолированные комнатыДа
Онлайн показДа



