2-комнатная квартира, 58.20 м² 10/16 этаж ID объекта 100124411
Воронеж, Конструкторов ул., д. 29а
Инфраструктура поблизости
Цена за наличные:
8 789 620 ₽
155 294 ₽/м²
Базовая цена:
10 208 279 ₽
Семейная ипотека
от 42 159 ₽/мес
Ипотека
от 102 813 ₽/мес
? Расчет цены приблизительный, за более точной информацией обращайтесь к менеджеру
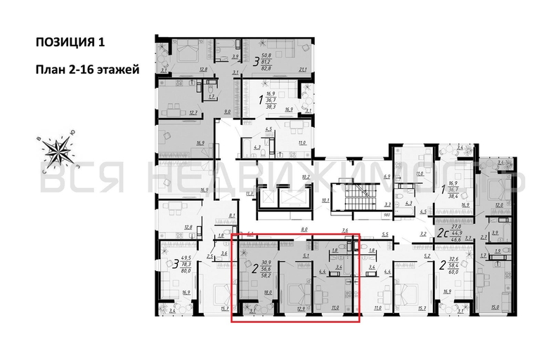
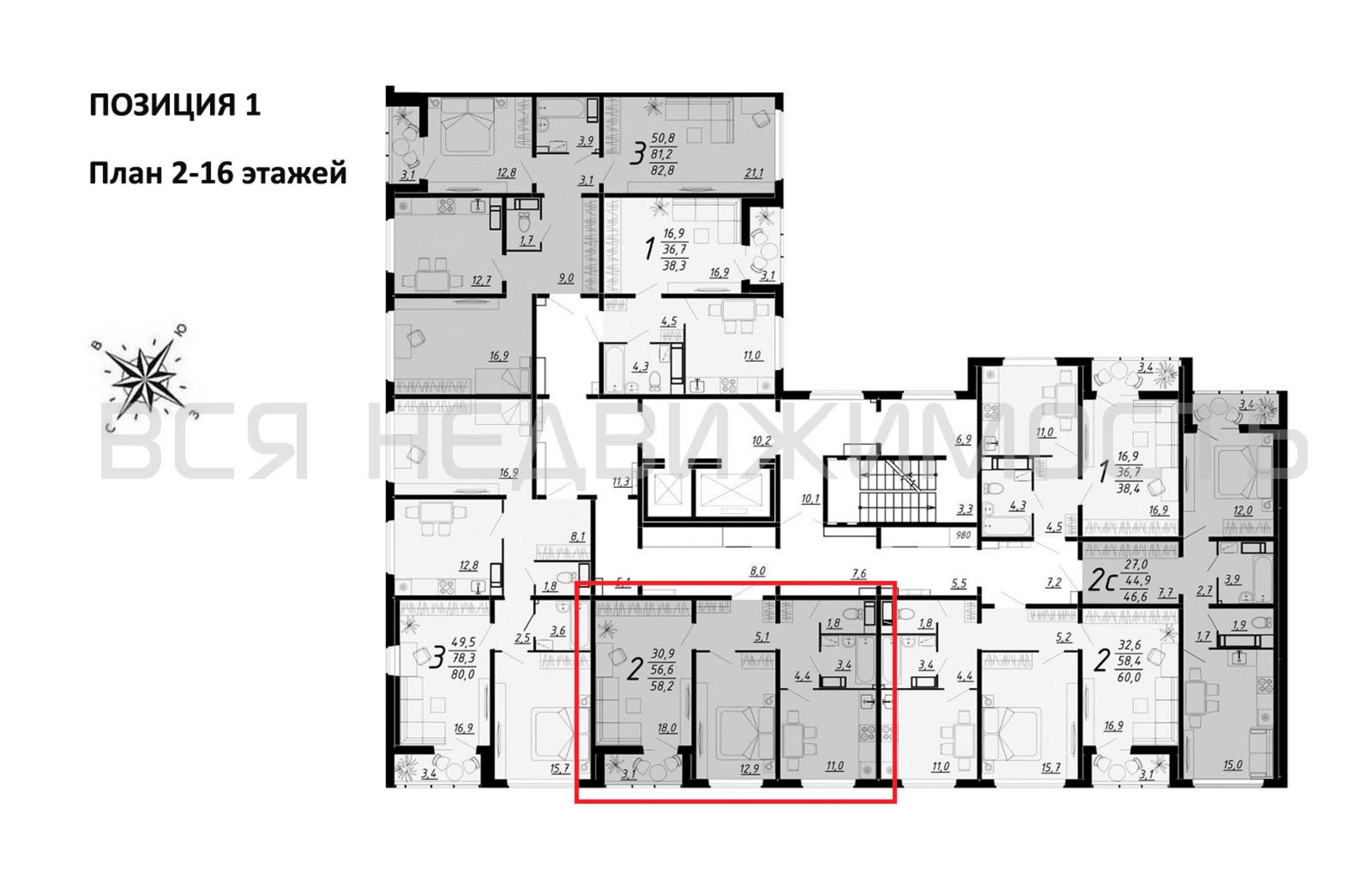
КорпусЭтап 2 Позиция 1
Срок сдачи4 кв 2027
Тип домаПанельный
Этаж10/16
№ Квартиры60
Тип сделкиПервичная продажа
Общая площадь56.60 м²
Строительная площадь58.20 м²
Жилая площадь30.90 м²
Площадь кухни11.00 м²
Высота потолков3.00 м
ОтделкаЧистовая отделка
Покрытие полаЛаминат
СанузелРаздельный
КладовкаНет
ЛифтДа
Изолированные комнатыДа
Онлайн показДа



