2-комнатная квартира, 60.00 м² 15/16 этаж ID объекта 100124445
Воронеж, Конструкторов ул., д. 29а
Инфраструктура поблизости
Цена за наличные:
8 885 700 ₽
152 152 ₽/м²
Базовая цена:
10 320 000 ₽
Семейная ипотека
от 42 619 ₽/мес
Ипотека
от 103 937 ₽/мес
? Расчет цены приблизительный, за более точной информацией обращайтесь к менеджеру
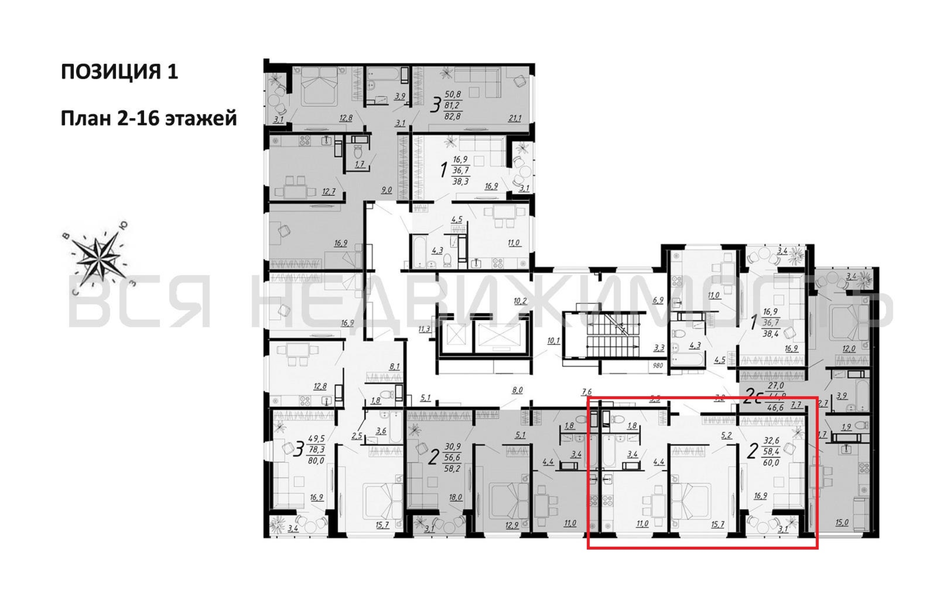
КорпусЭтап 2 Позиция 1
Срок сдачи4 кв 2027
Тип домаПанельный
Этаж15/16
№ Квартиры94
Тип сделкиПервичная продажа
Общая площадь58.40 м²
Строительная площадь60.00 м²
Жилая площадь32.60 м²
Площадь кухни11.00 м²
Высота потолков3.00 м
ОтделкаЧистовая отделка
Покрытие полаЛаминат
СанузелРаздельный
КладовкаНет
ЛифтДа
Изолированные комнатыДа
Онлайн показДа



