1-комнатная квартира, 38.40 м² 16/16 этаж ID объекта 100124450
Воронеж, Конструкторов ул., д. 29а
Инфраструктура поблизости
Цена за наличные:
5 921 796 ₽
161 357 ₽/м²
Базовая цена:
6 873 600 ₽
Семейная ипотека
от 28 403 ₽/мес
Ипотека
от 69 268 ₽/мес
? Расчет цены приблизительный, за более точной информацией обращайтесь к менеджеру
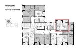
КорпусЭтап 2 Позиция 1
Срок сдачи4 кв 2027
Тип домаПанельный
Этаж16/16
№ Квартиры99
Тип сделкиПервичная продажа
Общая площадь36.70 м²
Строительная площадь38.40 м²
Жилая площадь16.90 м²
Площадь кухни11.00 м²
Высота потолков3.00 м
ОтделкаЧистовая отделка
Покрытие полаЛаминат
СанузелСовмещенный
КладовкаНет
ЛифтДа
Изолированные комнатыДа
Онлайн показДа



