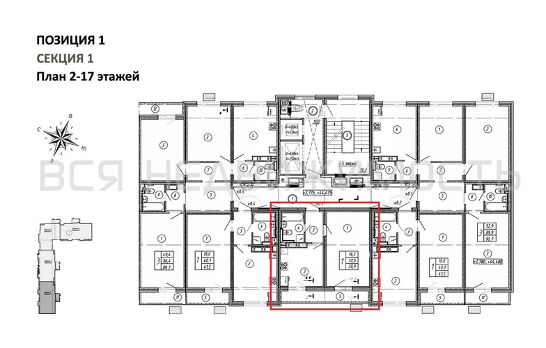
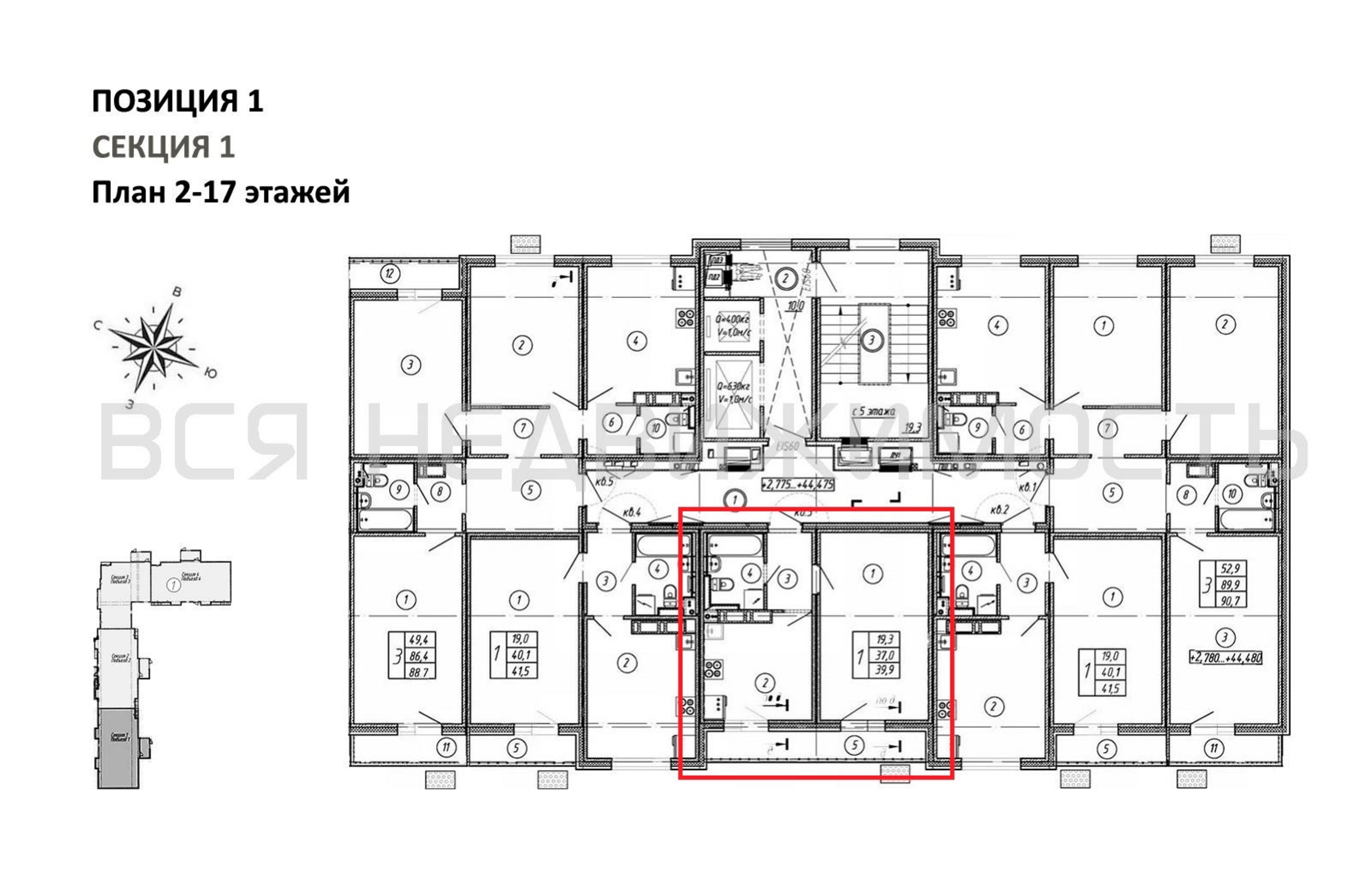
1-комнатная квартира, 39.90 м² 13/17 этаж ID объекта 100124916
Воронеж, Патриотов пр., д. 58а
Инфраструктура поблизости
Цена за наличные:
5 340 025 ₽
144 325 ₽/м²
Базовая цена:
6 675 031 ₽
Семейная ипотека
от 25 613 ₽/мес
Ипотека
от 62 463 ₽/мес
? Расчет цены приблизительный, за более точной информацией обращайтесь к менеджеру
Тип сделкиПервичная продажа
Общая площадь37.00 м²
Строительная площадь39.90 м²
Жилая площадь19.30 м²
Площадь кухни10.30 м²
Высота потолков2.55 м
ОтделкаЧистовая отделка
Покрытие полаЛинолеум
СанузелСовмещенный
КладовкаНет
ЛифтДа
Изолированные комнатыДа
Онлайн показДа



