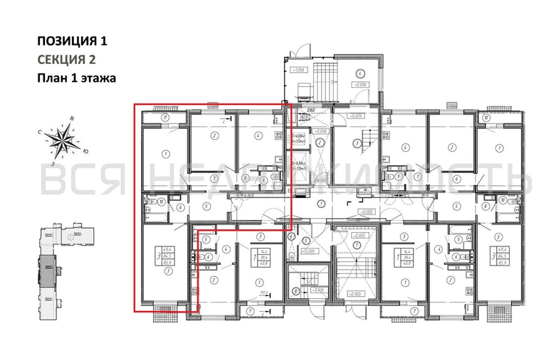
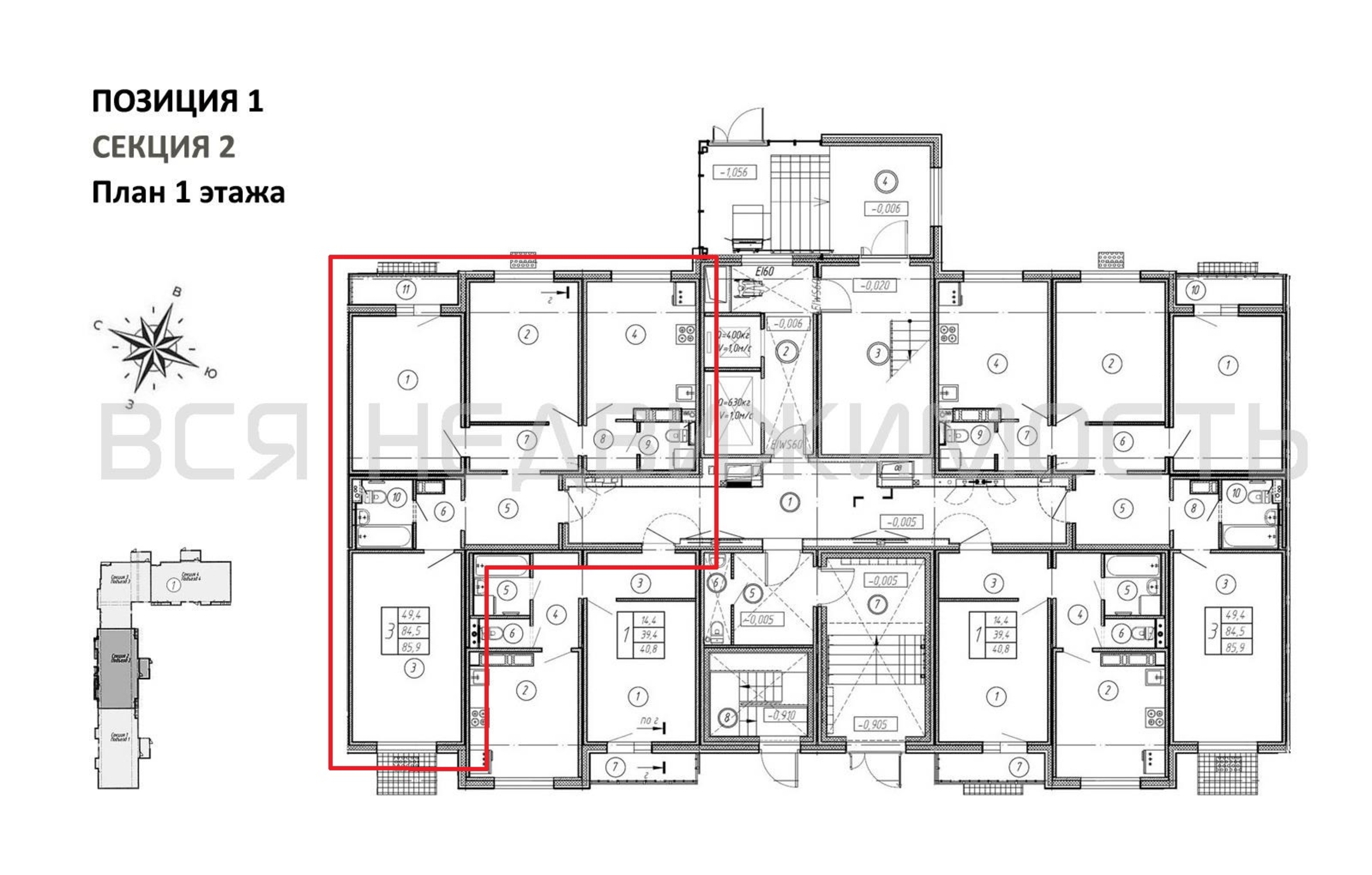
3-комнатная квартира, 85.90 м² 1/17 этаж ID объекта 100124942
Воронеж, Патриотов пр., д. 58а
Инфраструктура поблизости
Цена за наличные:
7 709 147 ₽
91 233 ₽/м²
Базовая цена:
9 636 434 ₽
Семейная ипотека
от 36 976 ₽/мес
Ипотека
от 90 175 ₽/мес
? Расчет цены приблизительный, за более точной информацией обращайтесь к менеджеру
Тип сделкиПервичная продажа
Общая площадь84.50 м²
Строительная площадь85.90 м²
Жилая площадь49.40 м²
Площадь кухни13.40 м²
Высота потолков2.55 м
ОтделкаЧистовая отделка
Покрытие полаЛинолеум
СанузелНесколько
КладовкаНет
ЛифтДа
Изолированные комнатыДа
Онлайн показДа



