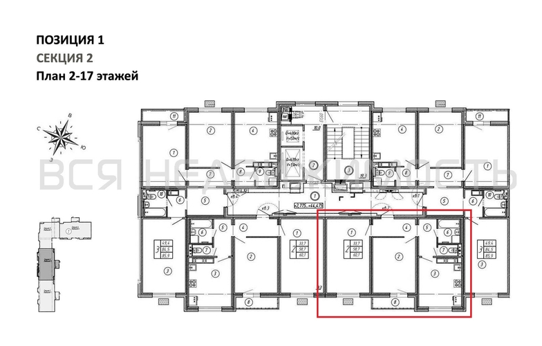
2-комнатная квартира, 60.10 м² 6/17 этаж ID объекта 100124960
Воронеж, Патриотов пр., д. 58а
Инфраструктура поблизости
Цена за наличные:
5 576 138 ₽
94 994 ₽/м²
Базовая цена:
6 970 173 ₽
Семейная ипотека
от 26 745 ₽/мес
Ипотека
от 65 225 ₽/мес
? Расчет цены приблизительный, за более точной информацией обращайтесь к менеджеру
Тип сделкиПервичная продажа
Общая площадь58.70 м²
Строительная площадь60.10 м²
Жилая площадь33.70 м²
Площадь кухни11.90 м²
Высота потолков2.55 м
ОтделкаЧистовая отделка
Покрытие полаЛинолеум
СанузелРаздельный
КладовкаНет
ЛифтДа
Изолированные комнатыДа
Онлайн показДа



