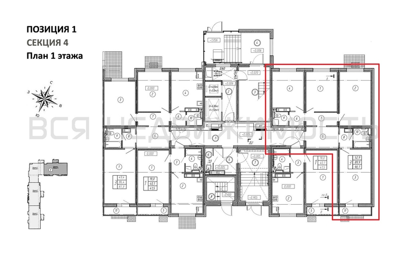
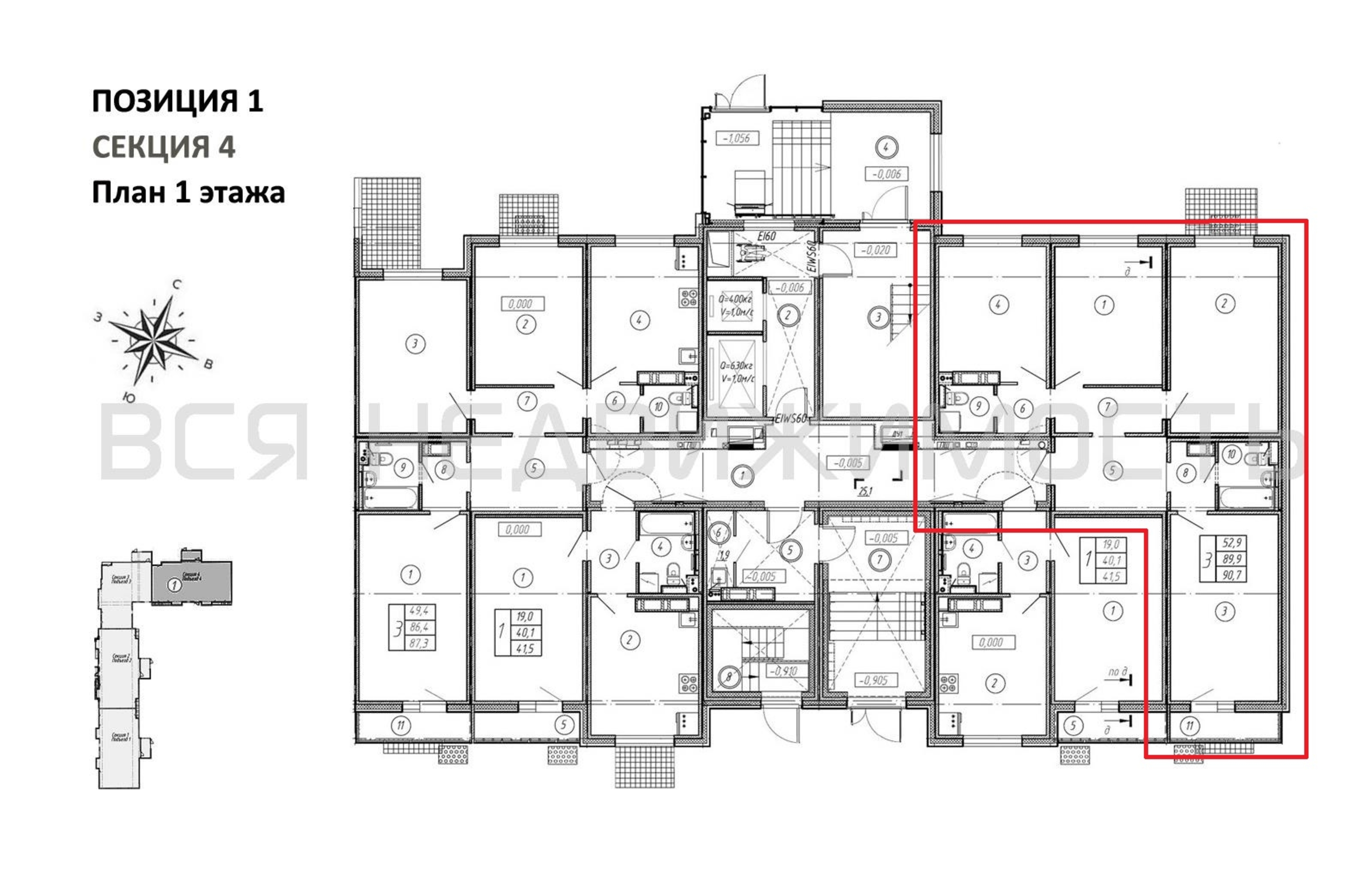
3-комнатная квартира, 90.70 м² 1/17 этаж ID объекта 100125092
Воронеж, Патриотов пр., д. 58а
Инфраструктура поблизости
Цена за наличные:
8 139 926 ₽
90 544 ₽/м²
Базовая цена:
10 174 907 ₽
Семейная ипотека
от 39 042 ₽/мес
Ипотека
от 95 214 ₽/мес
? Расчет цены приблизительный, за более точной информацией обращайтесь к менеджеру
Тип сделкиПервичная продажа
Общая площадь89.90 м²
Строительная площадь90.70 м²
Жилая площадь52.90 м²
Площадь кухни13.40 м²
Высота потолков2.55 м
ОтделкаЧистовая отделка
Покрытие полаЛинолеум
СанузелНесколько
БалконБалкон
КладовкаНет
ЛифтДа
Изолированные комнатыДа
Онлайн показДа



