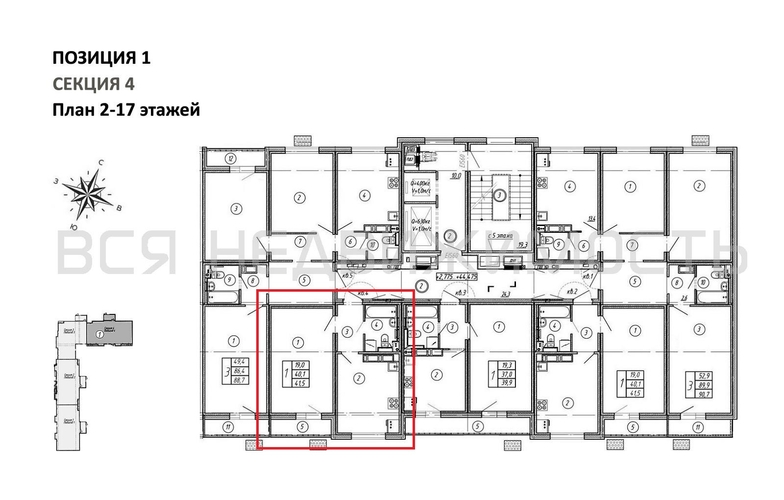
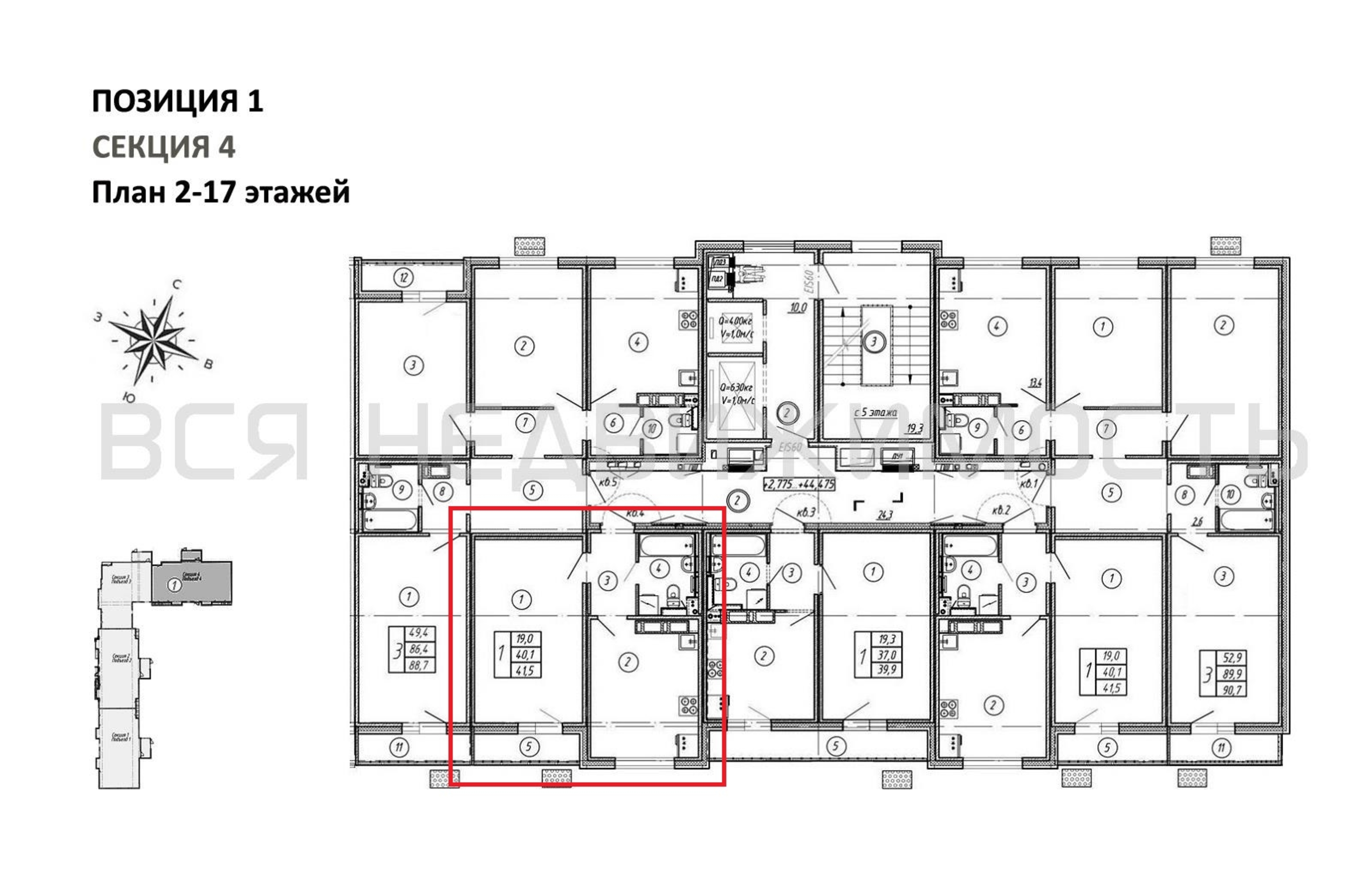
1-комнатная квартира, 41.50 м² 5/17 этаж ID объекта 100125114
Воронеж, Патриотов пр., д. 58а
Инфраструктура поблизости
Цена за наличные:
4 194 330 ₽
104 597 ₽/м²
Базовая цена:
5 242 913 ₽
Семейная ипотека
от 20 118 ₽/мес
Ипотека
от 49 062 ₽/мес
? Расчет цены приблизительный, за более точной информацией обращайтесь к менеджеру
Тип сделкиПервичная продажа
Общая площадь40.10 м²
Строительная площадь41.50 м²
Жилая площадь19.00 м²
Площадь кухни13.40 м²
Высота потолков2.55 м
ОтделкаЧистовая отделка
Покрытие полаЛинолеум
СанузелСовмещенный
КладовкаНет
ЛифтДа
Изолированные комнатыДа
Онлайн показДа



