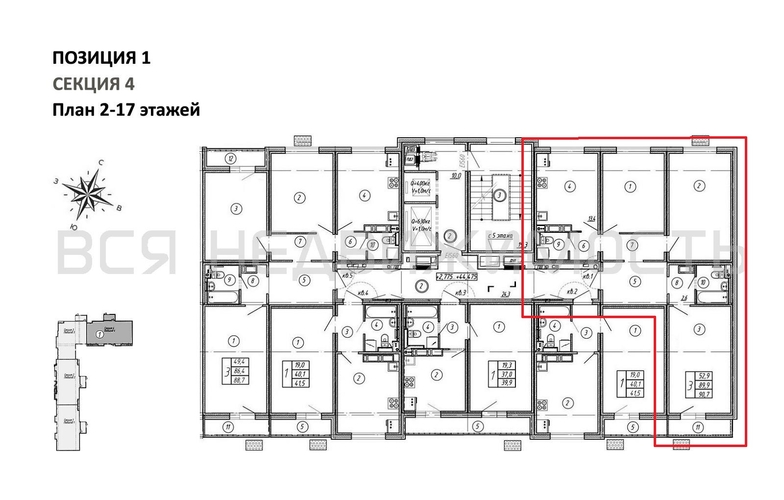
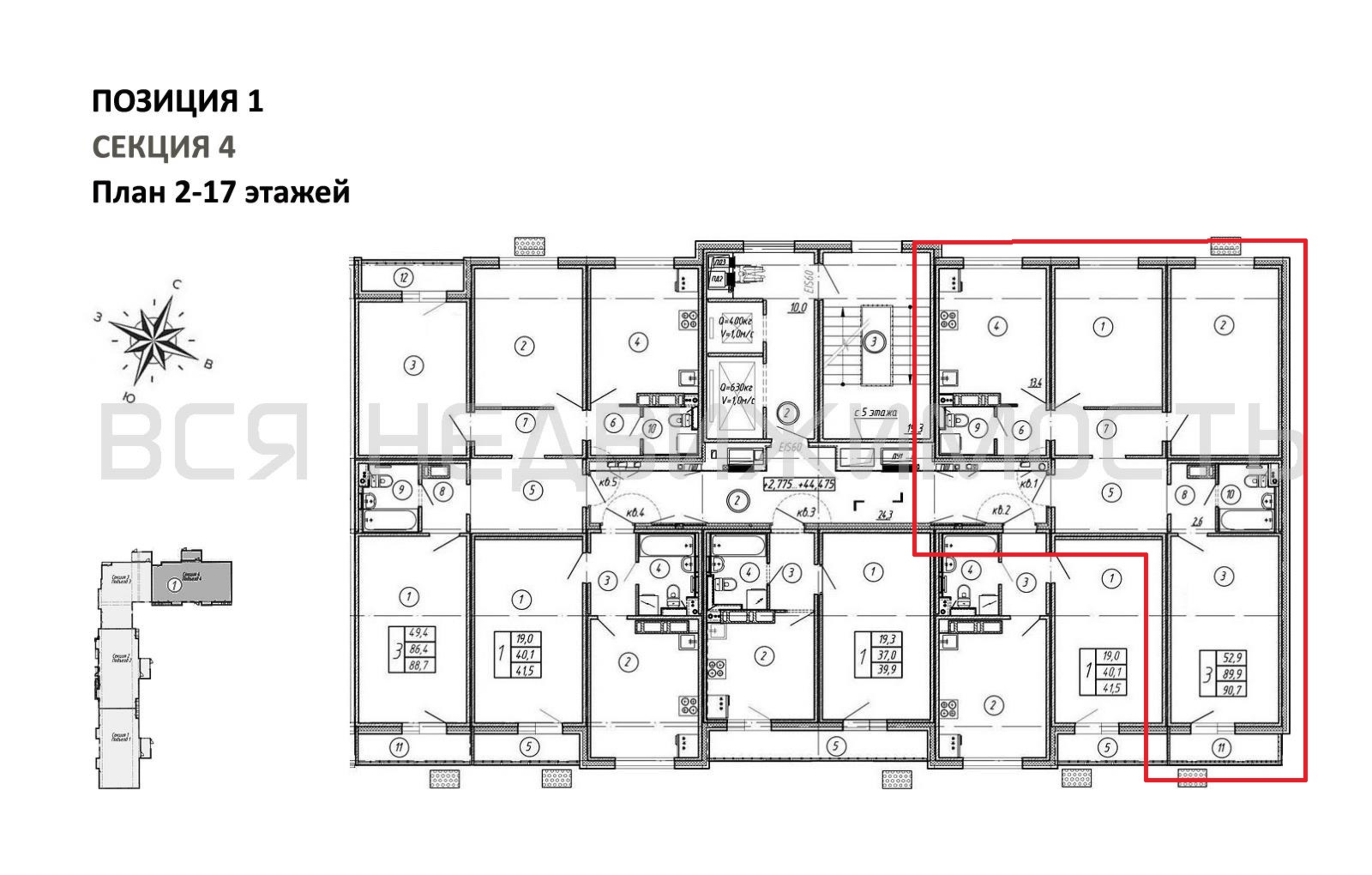
3-комнатная квартира, 90.70 м² 16/17 этаж ID объекта 100125166
Воронеж, Патриотов пр., д. 58а
Инфраструктура поблизости
Цена за наличные:
7 433 772 ₽
82 689 ₽/м²
Базовая цена:
9 292 215 ₽
Семейная ипотека
от 35 655 ₽/мес
Ипотека
от 86 954 ₽/мес
? Расчет цены приблизительный, за более точной информацией обращайтесь к менеджеру
Тип сделкиПервичная продажа
Общая площадь89.90 м²
Строительная площадь90.70 м²
Жилая площадь52.90 м²
Площадь кухни13.40 м²
Высота потолков2.55 м
ОтделкаЧистовая отделка
Покрытие полаЛинолеум
СанузелНесколько
БалконБалкон
КладовкаНет
ЛифтДа
Изолированные комнатыДа
Онлайн показДа



