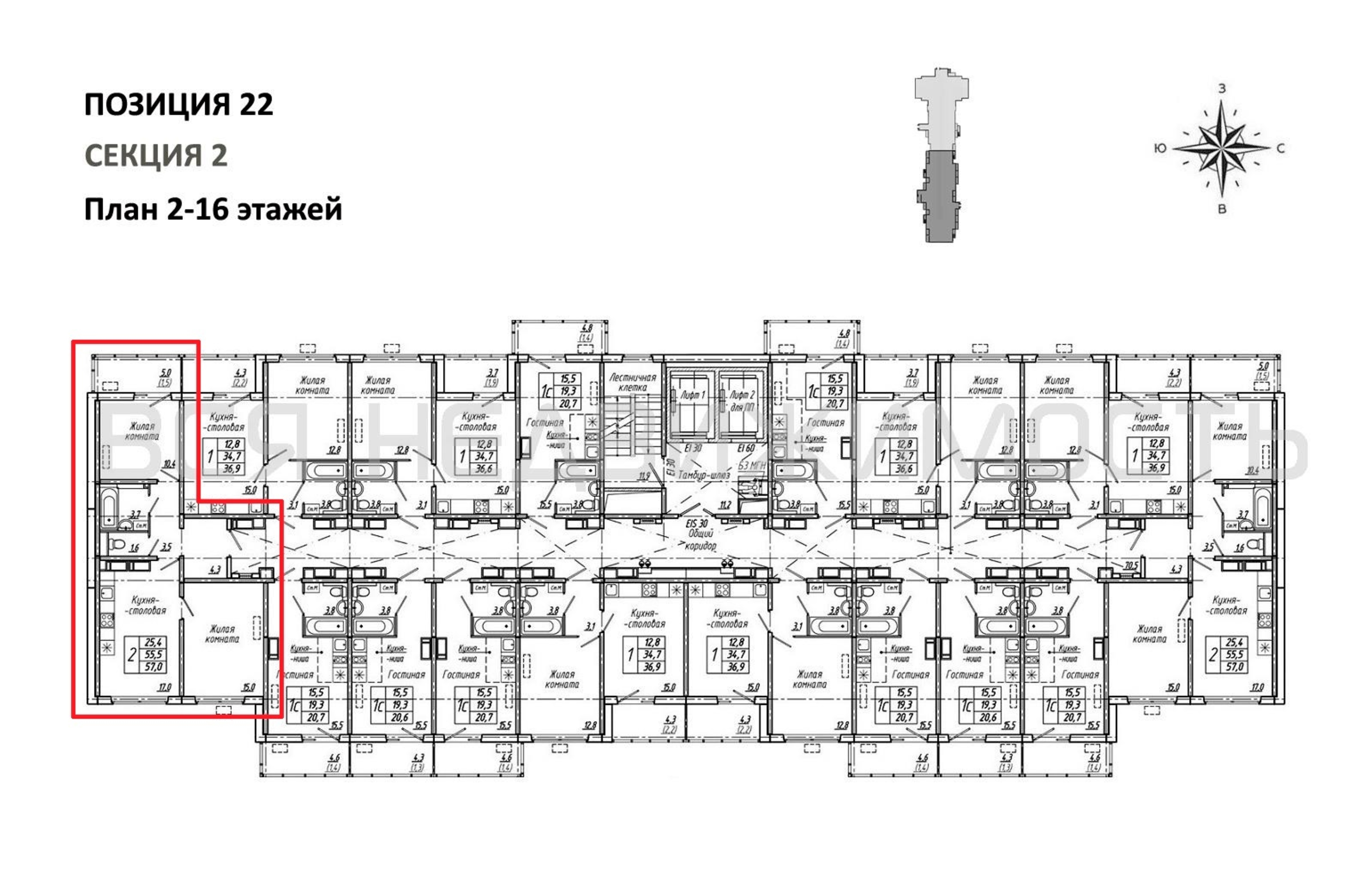
2-комнатная квартира, 57.00 м² 16/17 этаж ID объекта 100125612
Воронеж, Шибилкина ул., д. 5
Инфраструктура поблизости
Цена за наличные:
5 932 116 ₽
106 885 ₽/м²
Базовая цена:
6 885 600 ₽
Семейная ипотека
от 28 453 ₽/мес
Ипотека
от 69 389 ₽/мес
? Расчет цены приблизительный, за более точной информацией обращайтесь к менеджеру
Тип сделкиПервичная продажа
Общая площадь55.50 м²
Строительная площадь57.00 м²
Жилая площадь25.40 м²
Площадь кухни17.00 м²
Высота потолков2.60 м
ОтделкаЧистовая отделка
Покрытие полаЛаминат
СанузелРаздельный
БалконБалкон
КладовкаНет
ЛифтДа
Изолированные комнатыДа
Онлайн показДа



