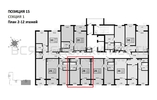
1-комнатная квартира, 37.04 м² 5/12 этаж ID объекта 100125926
с. Новая Усмань, Алмазная ул.,
Инфраструктура поблизости
Базовая цена:
4 311 456 ₽
122 346 ₽/м²
Семейная ипотека
от 20 679 ₽/мес
Ипотека
от 50 432 ₽/мес
? Расчет цены приблизительный, за более точной информацией обращайтесь к менеджеру
КорпусПозиция 15
Срок сдачи4 кв 2026
Тип домаПанельный
Этаж5/12
№ Квартиры30
Тип сделкиПервичная продажа
Общая площадь35.24 м²
Строительная площадь37.04 м²
Жилая площадь11.59 м²
Площадь кухни15.84 м²
Высота потолков2.64 м
ОтделкаЧистовая отделка
Покрытие полаЛаминат
СанузелСовмещенный
КладовкаНет
ЛифтДа
Изолированные комнатыДа
Онлайн показДа



