1-комнатная квартира, 40.77 м² 9/9 этаж ID объекта 100126044
с. Новая Усмань, Алмазная ул.,
Инфраструктура поблизости
Базовая цена:
4 097 385 ₽
106 013 ₽/м²
Семейная ипотека
от 19 653 ₽/мес
Ипотека
от 47 928 ₽/мес
? Расчет цены приблизительный, за более точной информацией обращайтесь к менеджеру
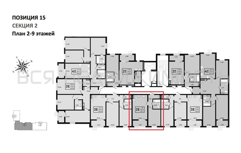
КорпусПозиция 15
Срок сдачи4 кв 2026
Тип домаПанельный
Этаж9/9
№ Квартиры148
Тип сделкиПервичная продажа
Общая площадь38.65 м²
Строительная площадь40.77 м²
Жилая площадь11.59 м²
Площадь кухни19.25 м²
Высота потолков2.64 м
ОтделкаПредчистовая отделка
СанузелСовмещенный
КладовкаНет
ЛифтДа
Изолированные комнатыДа
Онлайн показДа



