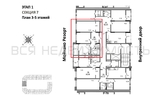
2-комнатная квартира, 57.63 м² 4/6 этаж ID объекта 100127334
Евпатория, имени 60-летия СССР ул., д. 10
Инфраструктура поблизости
Базовая цена:
14 695 272 ₽
264 684 ₽/м²
Семейная ипотека
от 70 484 ₽/мес
Ипотека
от 171 893 ₽/мес
? Расчет цены приблизительный, за более точной информацией обращайтесь к менеджеру
Тип сделкиПервичная продажа
Общая площадь55.52 м²
Строительная площадь57.63 м²
Жилая площадь27.90 м²
Площадь кухни10.56 м²
Высота потолков2.70 м
ОтделкаПредчистовая отделка
СанузелНесколько
КладовкаДа
ЛифтДа
Изолированные комнатыДа
Онлайн показДа



