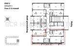
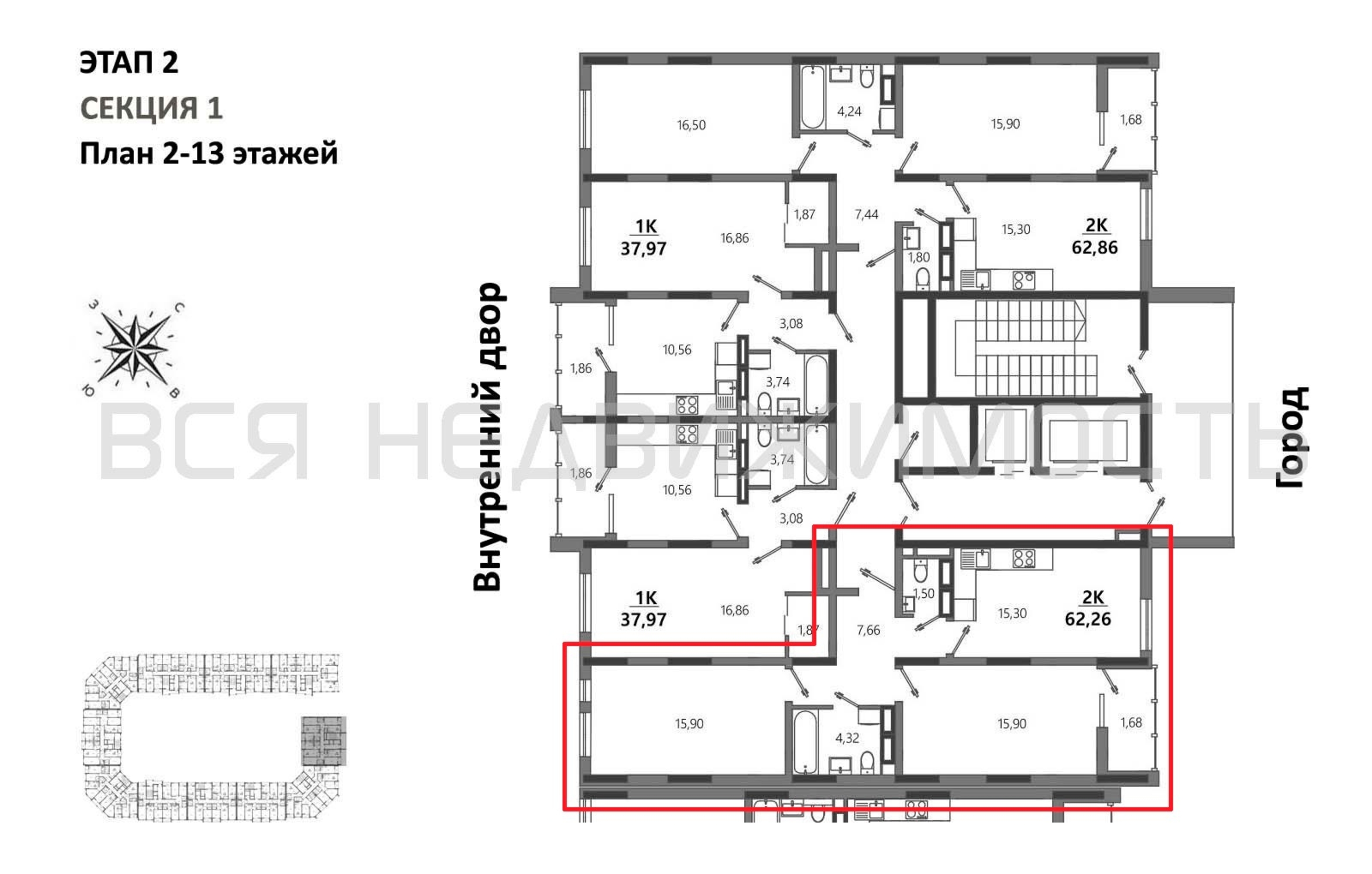
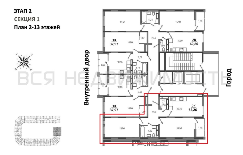
2-комнатная квартира, 62.86 м² 12/13 этаж ID объекта 100127347
Евпатория, имени 60-летия СССР ул., д. 10а
Инфраструктура поблизости
Базовая цена:
13 829 200 ₽
226 041 ₽/м²
Семейная ипотека
от 66 330 ₽/мес
Ипотека
от 161 762 ₽/мес
? Расчет цены приблизительный, за более точной информацией обращайтесь к менеджеру
КорпусРивьера этап 2
Срок сдачи1 кв 2026
Тип домаБлочный
Этаж12/13
№ Квартиры47
Тип сделкиПервичная продажа
Общая площадь61.18 м²
Строительная площадь62.86 м²
Жилая площадь32.40 м²
Площадь кухни15.30 м²
Высота потолков2.70 м
ОтделкаПредчистовая отделка
СанузелНесколько
КладовкаНет
ЛифтДа
Изолированные комнатыДа
Онлайн показДа



