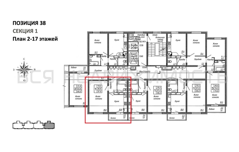
1-комнатная квартира, 37.90 м² 9/17 этаж ID объекта 100129101
Воронеж, Ильюшина ул.
Инфраструктура поблизости
Цена за наличные:
3 965 441 ₽
107 465 ₽/м²
Базовая цена:
4 819 440 ₽
Семейная ипотека
от 19 020 ₽/мес
Ипотека
от 46 384 ₽/мес
? Расчет цены приблизительный, за более точной информацией обращайтесь к менеджеру
Тип сделкиПервичная продажа
Общая площадь36.90 м²
Строительная площадь37.90 м²
Жилая площадь19.00 м²
Площадь кухни10.80 м²
Высота потолков2.78 м
ОтделкаЧистовая отделка
Покрытие полаЛинолеум
СанузелСовмещенный
БалконБалкон
КладовкаНет
ЛифтДа
Изолированные комнатыДа
Онлайн показДа



