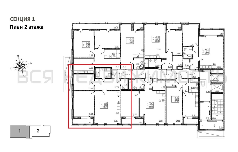
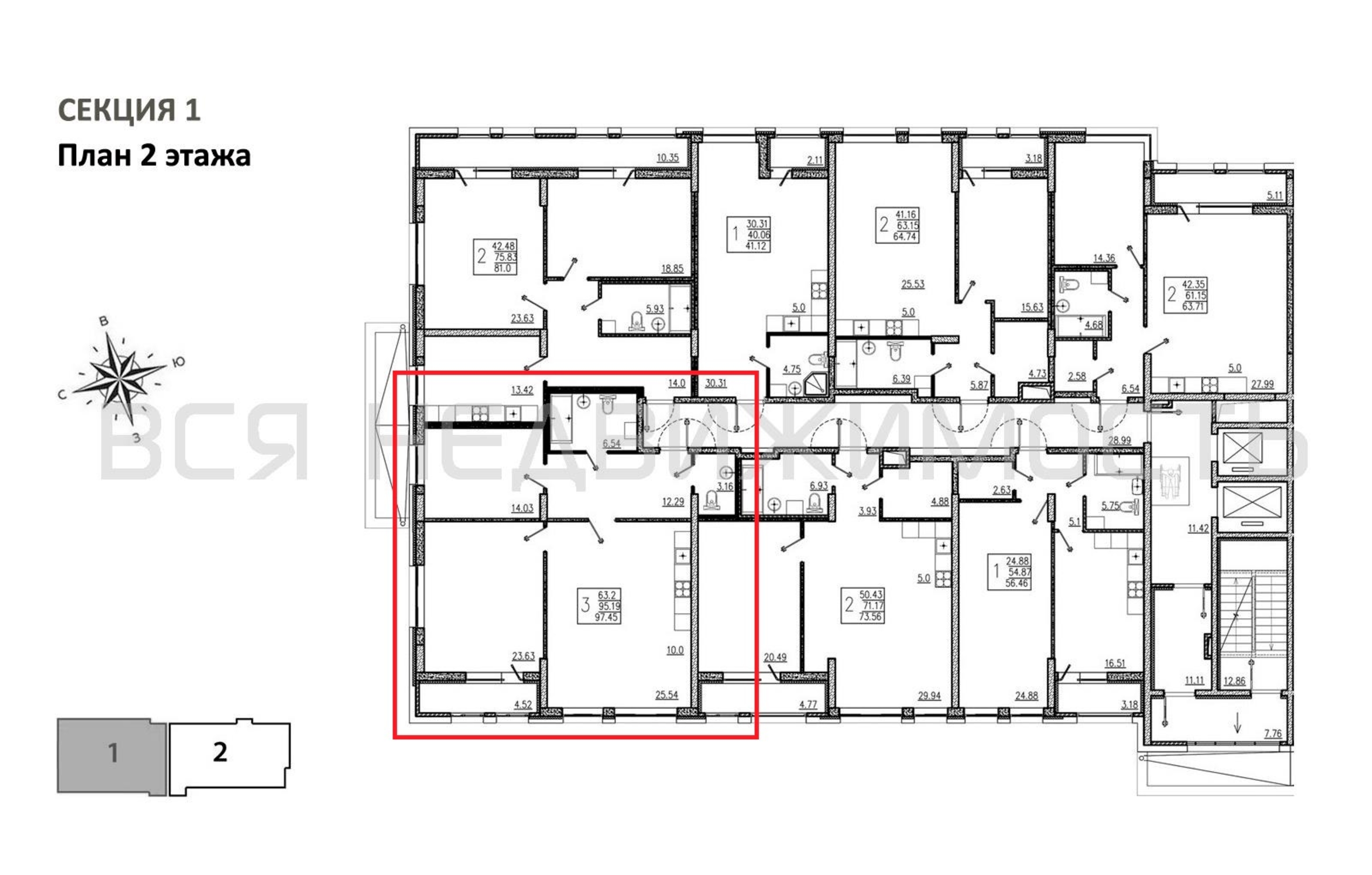
2-комнатная квартира, 97.45 м² 2/11 этаж ID объекта 100131979
Воронеж, Любы Шевцовой ул., д. 31
Инфраструктура поблизости
Базовая цена:
10 219 808 ₽
107 362 ₽/м²
Семейная ипотека
от 49 018 ₽/мес
Ипотека
от 119 542 ₽/мес
? Расчет цены приблизительный, за более точной информацией обращайтесь к менеджеру
Тип сделкиПервичная продажа
Общая площадь95.19 м²
Строительная площадь97.45 м²
Жилая площадь37.66 м²
Площадь кухни35.54 м²
Высота потолков2.74 м
ОтделкаЧерновая отделка
СанузелНесколько
КладовкаНет
ЛифтДа
Изолированные комнатыДа
Онлайн показДа



