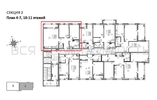
2-комнатная квартира, 85.56 м² 11/11 этаж ID объекта 100131991
Воронеж, Любы Шевцовой ул., д. 31
Инфраструктура поблизости
Базовая цена:
9 720 615 ₽
117 172 ₽/м²
Семейная ипотека
от 46 624 ₽/мес
Ипотека
от 113 703 ₽/мес
? Расчет цены приблизительный, за более точной информацией обращайтесь к менеджеру
Тип сделкиПервичная продажа
Общая площадь82.96 м²
Строительная площадь85.56 м²
Жилая площадь29.83 м²
Площадь кухни32.82 м²
Высота потолков2.74 м
ОтделкаЧерновая отделка
СанузелНесколько
КладовкаНет
ЛифтДа
Изолированные комнатыДа
Онлайн показДа



