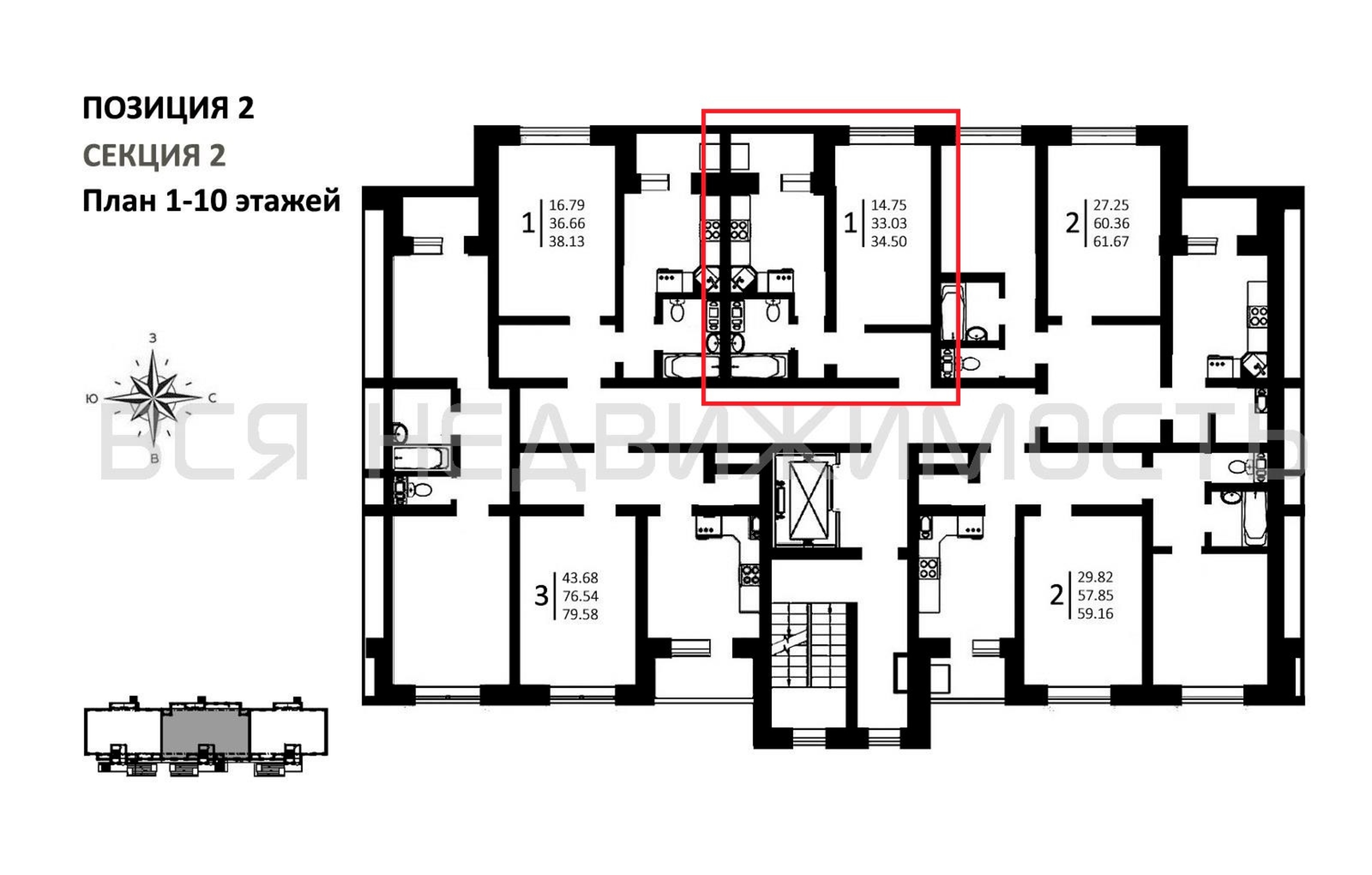
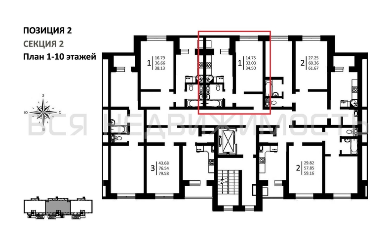
1-комнатная квартира, 34.50 м² 7/10 этаж ID объекта 100132178
с. Новая Усмань, Раздольная ул., д. 4
Инфраструктура поблизости
Цена за наличные:
2 872 470 ₽
86 965 ₽/м²
Базовая цена:
3 122 250 ₽
Семейная ипотека
от 13 778 ₽/мес
Ипотека
от 33 600 ₽/мес
? Расчет цены приблизительный, за более точной информацией обращайтесь к менеджеру
ЖКЖК Южный
КорпусЭтап 3 позиция 2
Срок сдачи2 кв 2027
Тип домаМонолитно-кирпичный
Этаж7/10
№ Квартиры73
Тип сделкиПервичная продажа
Общая площадь33.03 м²
Строительная площадь34.50 м²
Жилая площадь14.75 м²
Площадь кухни8.23 м²
Высота потолков2.60 м
ОтделкаЧерновая отделка
СанузелСовмещенный
КладовкаНет
ЛифтДа
Изолированные комнатыДа
Онлайн показДа



