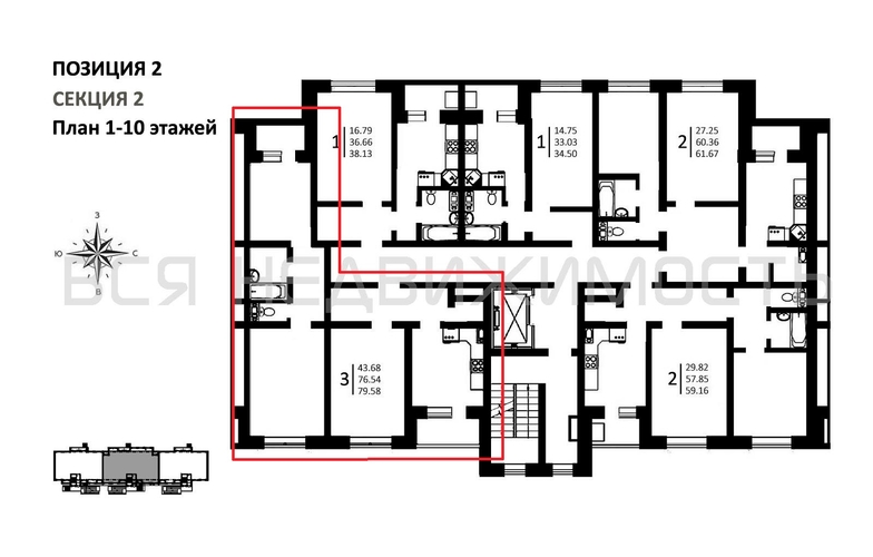
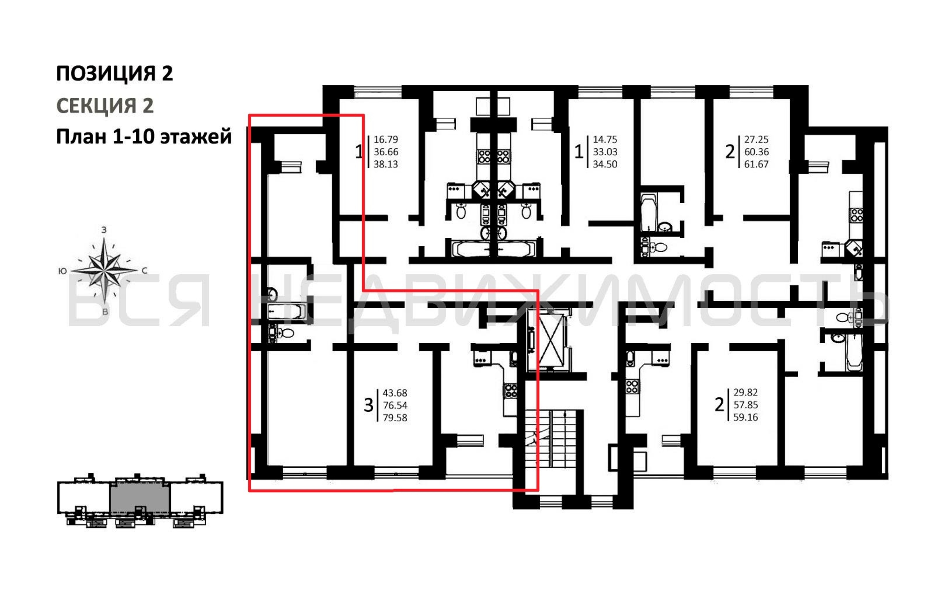
3-комнатная квартира, 79.59 м² 8/10 этаж ID объекта 100132181
с. Новая Усмань, Раздольная ул., д. 4
Инфраструктура поблизости
Цена за наличные:
5 710 661 ₽
74 610 ₽/м²
Базовая цена:
6 207 240 ₽
Семейная ипотека
от 27 391 ₽/мес
Ипотека
от 66 798 ₽/мес
? Расчет цены приблизительный, за более точной информацией обращайтесь к менеджеру
ЖКЖК Южный
КорпусЭтап 3 позиция 2
Срок сдачи2 кв 2027
Тип домаМонолитно-кирпичный
Этаж8/10
№ Квартиры76
Тип сделкиПервичная продажа
Общая площадь76.54 м²
Строительная площадь79.59 м²
Жилая площадь43.68 м²
Площадь кухни11.62 м²
Высота потолков2.60 м
ОтделкаЧерновая отделка
СанузелРаздельный
Балкон2 лоджии
КладовкаДа
ЛифтДа
Изолированные комнатыДа
Онлайн показДа



