2-комнатная квартира, 58.02 м² 1/10 этаж ID объекта 100132199
с. Новая Усмань, Раздольная ул., д. 4
Инфраструктура поблизости
Цена за наличные:
4 163 515 ₽
74 058 ₽/м²
Базовая цена:
4 525 560 ₽
Семейная ипотека
от 19 970 ₽/мес
Ипотека
от 48 701 ₽/мес
? Расчет цены приблизительный, за более точной информацией обращайтесь к менеджеру
ЖКЖК Южный
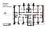
КорпусЭтап 3 позиция 2
Срок сдачи2 кв 2027
Тип домаМонолитно-кирпичный
Этаж1/10
№ Квартиры94
Тип сделкиПервичная продажа
Общая площадь56.22 м²
Строительная площадь58.02 м²
Жилая площадь26.48 м²
Площадь кухни11.85 м²
Высота потолков2.60 м
ОтделкаЧерновая отделка
СанузелНесколько
КладовкаНет
ЛифтДа
Изолированные комнатыДа
Онлайн показДа



