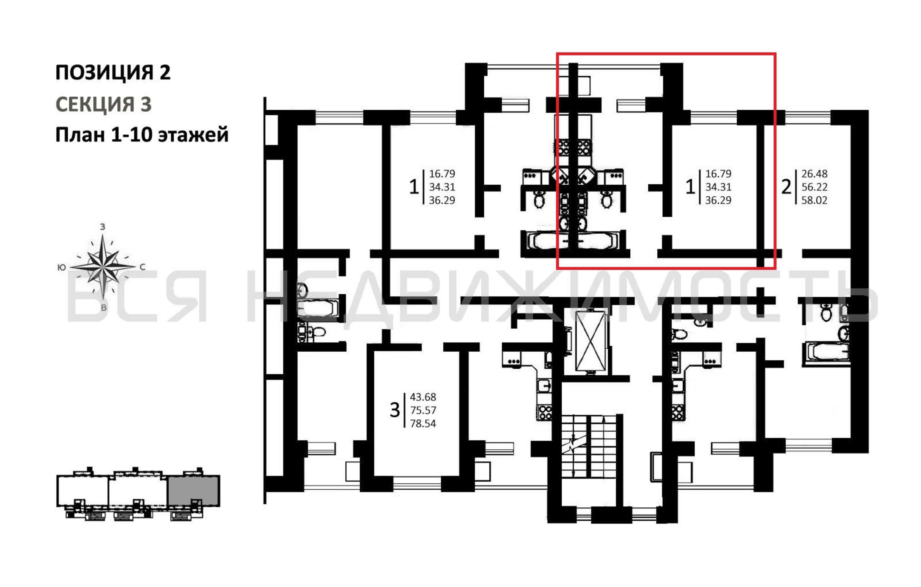
1-комнатная квартира, 36.29 м² 8/10 этаж ID объекта 100132226
с. Новая Усмань, Раздольная ул., д. 4
Инфраструктура поблизости
Цена за наличные:
3 004 812 ₽
87 578 ₽/м²
Базовая цена:
3 266 100 ₽
Семейная ипотека
от 14 412 ₽/мес
Ипотека
от 35 148 ₽/мес
? Расчет цены приблизительный, за более точной информацией обращайтесь к менеджеру
ЖКЖК Южный
КорпусЭтап 3 позиция 2
Срок сдачи2 кв 2027
Тип домаМонолитно-кирпичный
Этаж8/10
№ Квартиры121
Тип сделкиПервичная продажа
Общая площадь34.31 м²
Строительная площадь36.29 м²
Жилая площадь16.79 м²
Площадь кухни9.99 м²
Высота потолков2.60 м
ОтделкаЧерновая отделка
СанузелСовмещенный
КладовкаНет
ЛифтДа
Изолированные комнатыДа
Онлайн показДа



