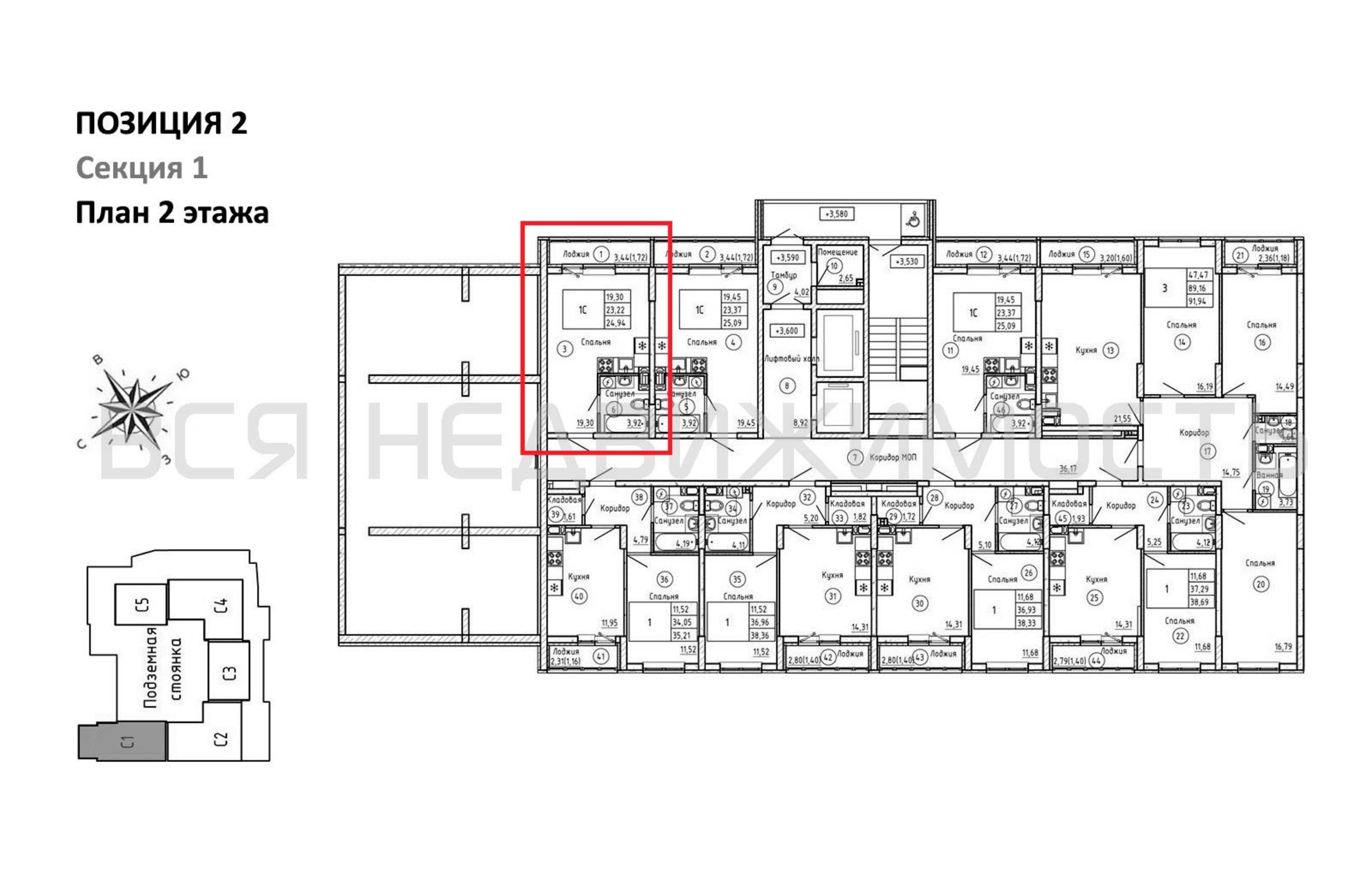
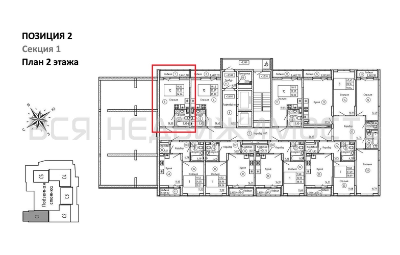
Квартиры-студии, 24.94 м² 2/18 этаж ID объекта 100133196
Воронеж, МОПРа ул., д. 7а
Инфраструктура поблизости
Базовая цена:
4 127 570 ₽
177 759 ₽/м²
Семейная ипотека
от 19 797 ₽/мес
Ипотека
от 48 281 ₽/мес
? Расчет цены приблизительный, за более точной информацией обращайтесь к менеджеру
Тип сделкиПервичная продажа
Общая площадь23.22 м²
Строительная площадь24.94 м²
Жилая площадь19.30 м²
Площадь кухни2.00 м²
Высота потолков2.80 м
ОтделкаЧерновая отделка
СанузелСовмещенный
КладовкаНет
ЛифтДа
Изолированные комнатыДа
Онлайн показДа



