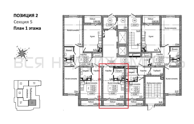
Квартиры-студии, 23.24 м² 1/18 этаж ID объекта 100133634
Воронеж, МОПРа ул., д. 7а
Инфраструктура поблизости
Базовая цена:
3 846 220 ₽
177 983 ₽/м²
Семейная ипотека
от 18 448 ₽/мес
Ипотека
от 44 990 ₽/мес
? Расчет цены приблизительный, за более точной информацией обращайтесь к менеджеру
Тип сделкиПервичная продажа
Общая площадь21.61 м²
Строительная площадь23.24 м²
Жилая площадь13.15 м²
Площадь кухни2.00 м²
Высота потолков2.80 м
ОтделкаЧерновая отделка
СанузелСовмещенный
КладовкаНет
ЛифтДа
Изолированные комнатыДа
Онлайн показДа



