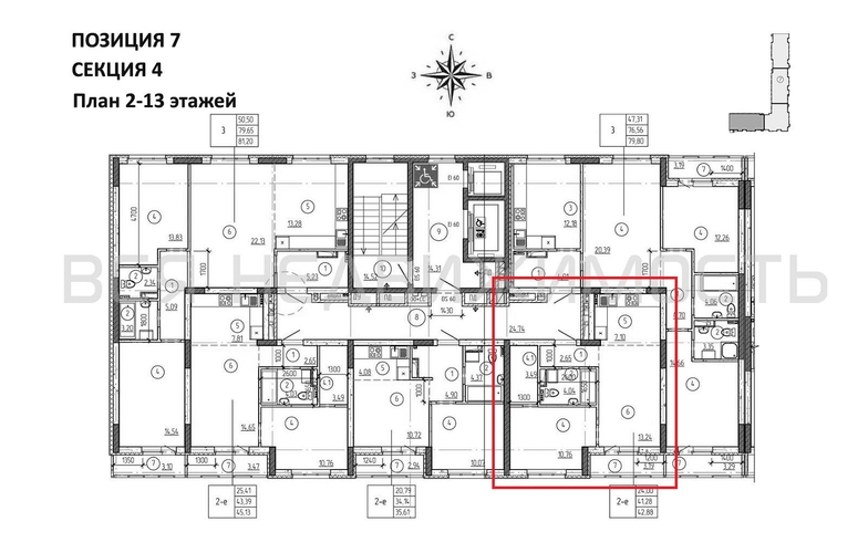
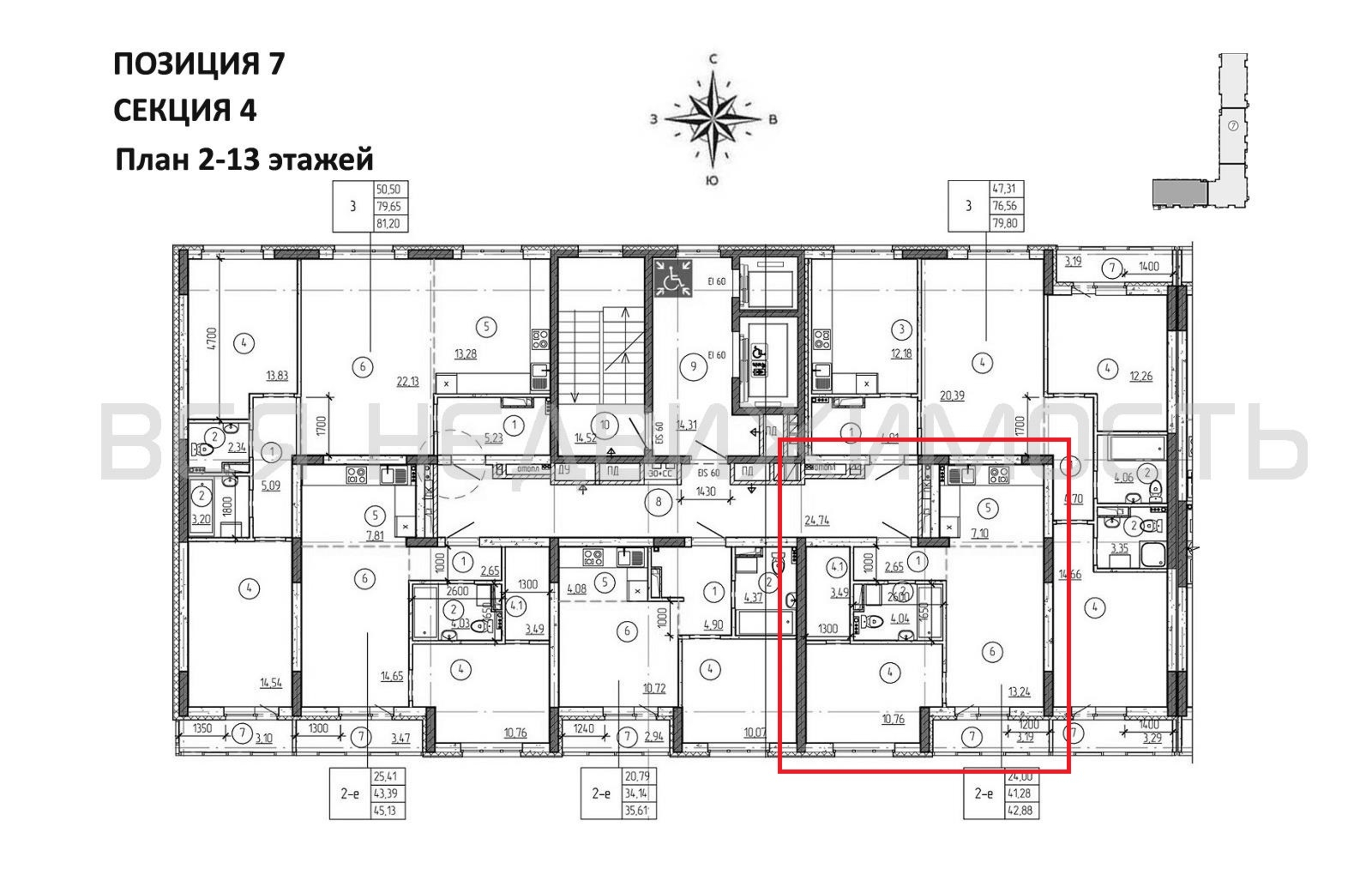
1-комнатная квартира, 42.88 м² 2/13 этаж ID объекта 100136770
Воронеж, Патриотов пр., д. 58а
Инфраструктура поблизости
Цена за наличные:
5 664 039 ₽
137 210 ₽/м²
Базовая цена:
7 080 049 ₽
Семейная ипотека
от 27 167 ₽/мес
Ипотека
от 66 253 ₽/мес
? Расчет цены приблизительный, за более точной информацией обращайтесь к менеджеру
Тип сделкиПервичная продажа
Общая площадь41.28 м²
Строительная площадь42.88 м²
Жилая площадь10.76 м²
Площадь кухни20.34 м²
Высота потолков2.60 м
ОтделкаЧерновая отделка
СанузелСовмещенный
КладовкаДа
ЛифтДа
Изолированные комнатыНет
Онлайн показДа



