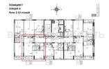
1-комнатная квартира, 45.13 м² 3/13 этаж ID объекта 100136777
Воронеж, Патриотов пр., д. 58а
Инфраструктура поблизости
Цена за наличные:
6 046 098 ₽
139 343 ₽/м²
Базовая цена:
7 557 623 ₽
Семейная ипотека
от 29 000 ₽/мес
Ипотека
от 70 722 ₽/мес
? Расчет цены приблизительный, за более точной информацией обращайтесь к менеджеру
Тип сделкиПервичная продажа
Общая площадь43.39 м²
Строительная площадь45.13 м²
Жилая площадь10.76 м²
Площадь кухни22.46 м²
Высота потолков2.60 м
ОтделкаЧерновая отделка
СанузелСовмещенный
КладовкаДа
ЛифтДа
Изолированные комнатыНет
Онлайн показДа



