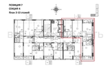
3-комнатная квартира, 79.80 м² 6/13 этаж ID объекта 100136789
Воронеж, Патриотов пр., д. 58а
Инфраструктура поблизости
Цена за наличные:
9 645 462 ₽
125 986 ₽/м²
Базовая цена:
12 056 827 ₽
Семейная ипотека
от 46 264 ₽/мес
Ипотека
от 112 824 ₽/мес
? Расчет цены приблизительный, за более точной информацией обращайтесь к менеджеру
Тип сделкиПервичная продажа
Общая площадь76.56 м²
Строительная площадь79.80 м²
Жилая площадь47.31 м²
Площадь кухни12.18 м²
Высота потолков2.60 м
ОтделкаЧерновая отделка
СанузелНесколько
Балкон2 лоджии
КладовкаНет
ЛифтДа
Изолированные комнатыНет
Онлайн показДа



