1-комнатная квартира, 42.88 м² 9/13 этаж ID объекта 100136805
Воронеж, Патриотов пр., д. 58а
Инфраструктура поблизости
Цена за наличные:
5 744 757 ₽
139 166 ₽/м²
Базовая цена:
7 180 946 ₽
Семейная ипотека
от 27 554 ₽/мес
Ипотека
от 67 197 ₽/мес
? Расчет цены приблизительный, за более точной информацией обращайтесь к менеджеру
Тип сделкиПервичная продажа
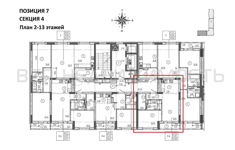
Общая площадь41.28 м²
Строительная площадь42.88 м²
Жилая площадь10.76 м²
Площадь кухни20.34 м²
Высота потолков2.60 м
ОтделкаЧерновая отделка
СанузелСовмещенный
КладовкаДа
ЛифтДа
Изолированные комнатыНет
Онлайн показДа



