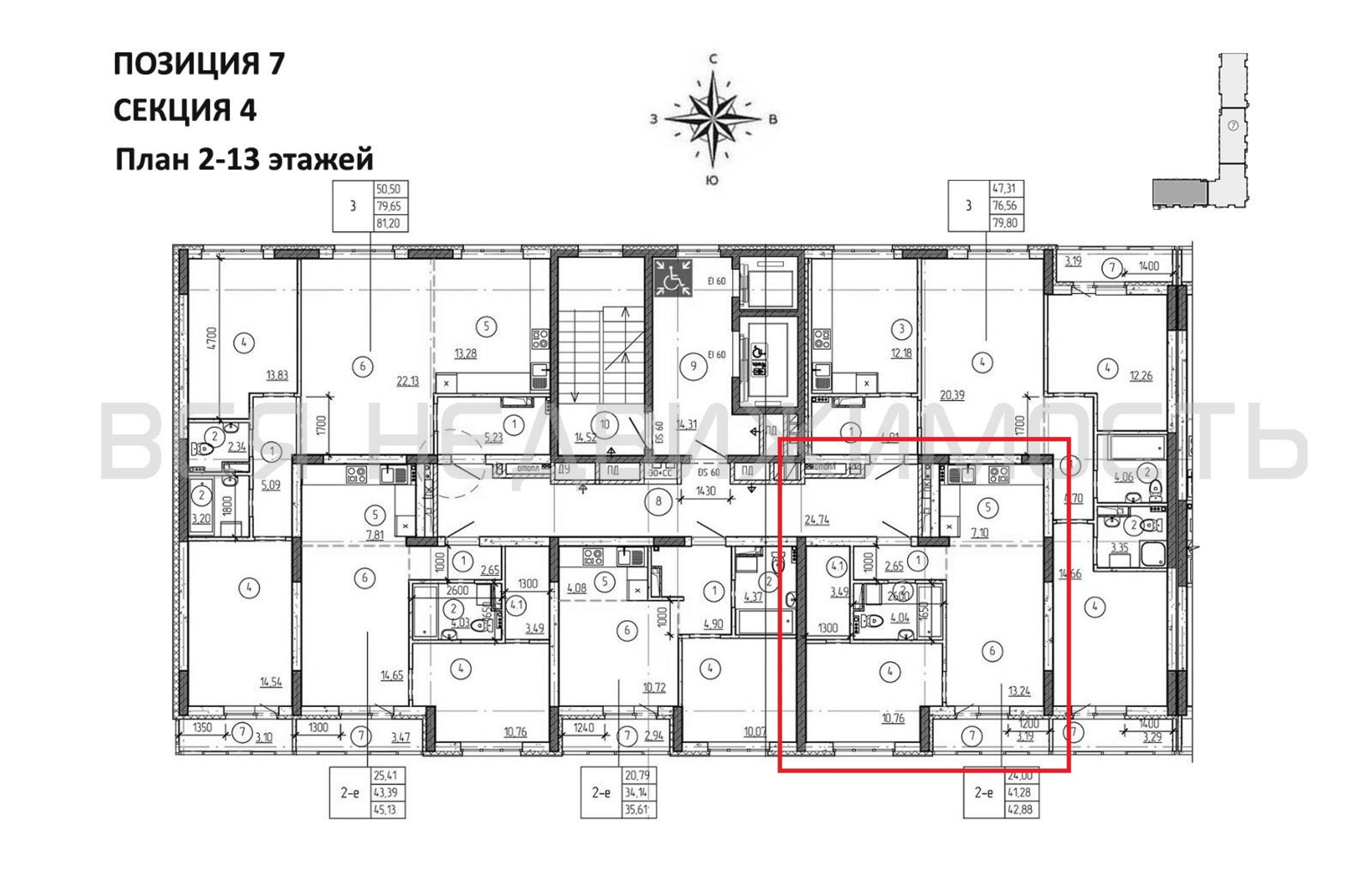
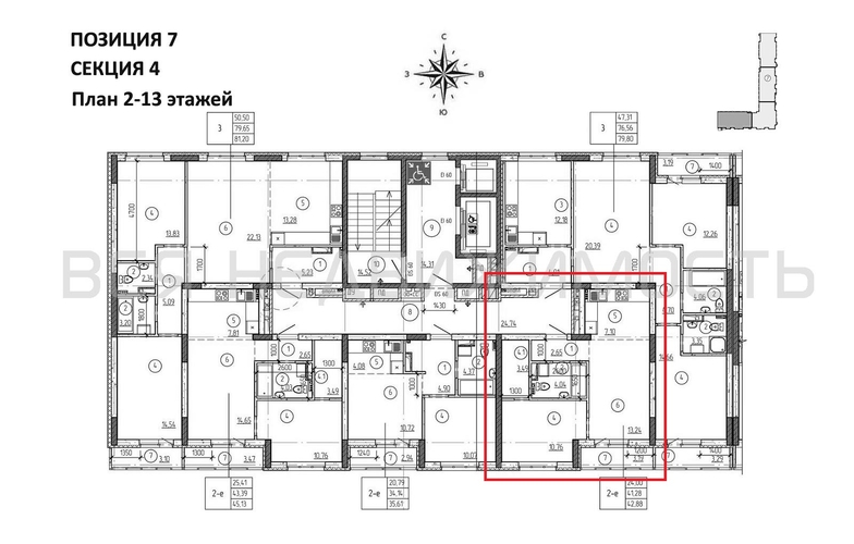
1-комнатная квартира, 42.88 м² 12/13 этаж ID объекта 100136820
Воронеж, Патриотов пр., д. 58а
Инфраструктура поблизости
Цена за наличные:
5 704 381 ₽
138 188 ₽/м²
Базовая цена:
7 130 476 ₽
Семейная ипотека
от 27 361 ₽/мес
Ипотека
от 66 725 ₽/мес
? Расчет цены приблизительный, за более точной информацией обращайтесь к менеджеру
Тип сделкиПервичная продажа
Общая площадь41.28 м²
Строительная площадь42.88 м²
Жилая площадь10.76 м²
Площадь кухни20.34 м²
Высота потолков2.60 м
ОтделкаЧерновая отделка
СанузелСовмещенный
КладовкаДа
ЛифтДа
Изолированные комнатыНет
Онлайн показДа



