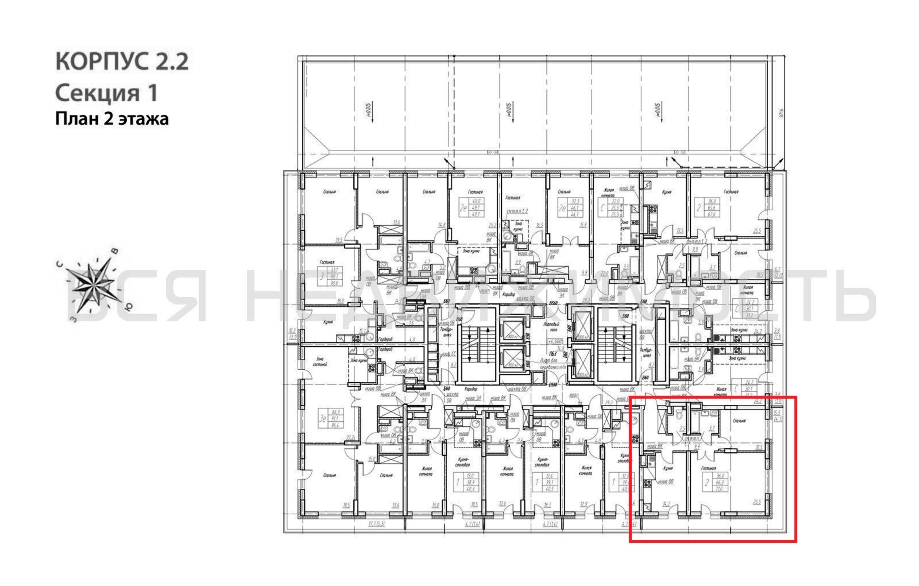
2-комнатная квартира, 71.00 м² 2/32 этаж ID объекта 100137064
Воронеж, Ворошилова ул., д. 10/1
Инфраструктура поблизости
Цена за наличные:
16 099 810 ₽
242 833 ₽/м²
Базовая цена:
18 708 500 ₽
Семейная ипотека
от 77 221 ₽/мес
Ипотека
от 188 322 ₽/мес
? Расчет цены приблизительный, за более точной информацией обращайтесь к менеджеру
КорпусПозиция 2.2 Венера
Срок сдачи2 кв 2028
Тип домаМонолитный
Этаж2/32
№ Квартиры8
Тип сделкиПервичная продажа
Общая площадь66.30 м²
Строительная площадь71.00 м²
Жилая площадь36.00 м²
Площадь кухни14.20 м²
Высота потолков2.72 м
ОтделкаЧистовая отделка
Покрытие полаЛаминат
СанузелРаздельный
БалконБалкон
КладовкаНет
ЛифтДа
Изолированные комнатыДа
Онлайн показДа



