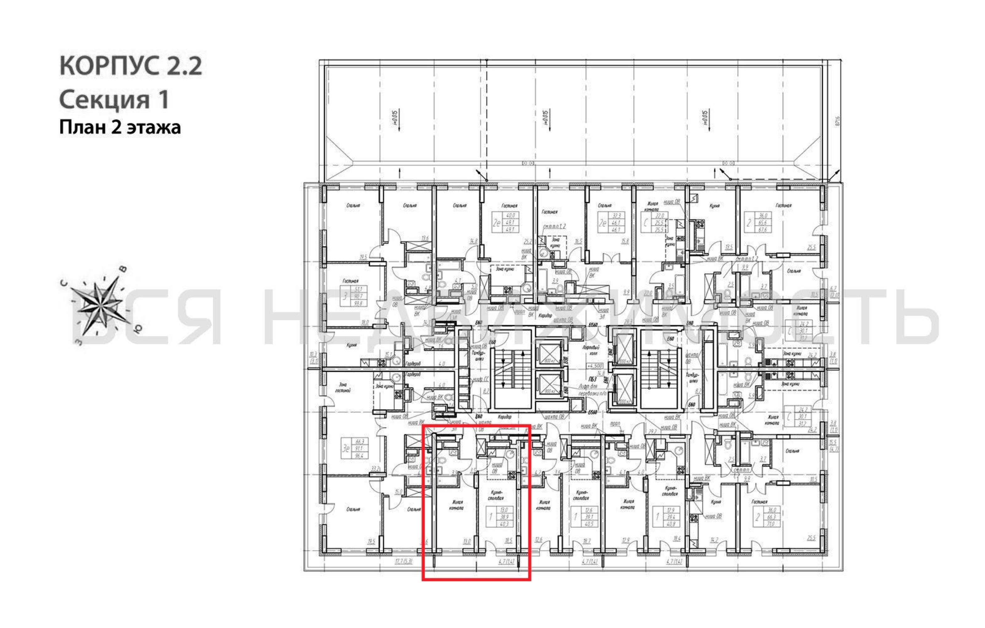
1-комнатная квартира, 40.30 м² 2/32 этаж ID объекта 100137065
Воронеж, Ворошилова ул., д. 10/1
Инфраструктура поблизости
Цена за наличные:
10 269 268 ₽
263 991 ₽/м²
Базовая цена:
11 928 800 ₽
Семейная ипотека
от 49 256 ₽/мес
Ипотека
от 120 121 ₽/мес
? Расчет цены приблизительный, за более точной информацией обращайтесь к менеджеру
КорпусПозиция 2.2 Венера
Срок сдачи2 кв 2028
Тип домаМонолитный
Этаж2/32
№ Квартиры11
Тип сделкиПервичная продажа
Общая площадь38.90 м²
Строительная площадь40.30 м²
Жилая площадь13.00 м²
Площадь кухни18.50 м²
Высота потолков2.72 м
ОтделкаЧистовая отделка
Покрытие полаЛаминат
СанузелСовмещенный
БалконБалкон
КладовкаНет
ЛифтДа
Изолированные комнатыДа
Онлайн показДа



