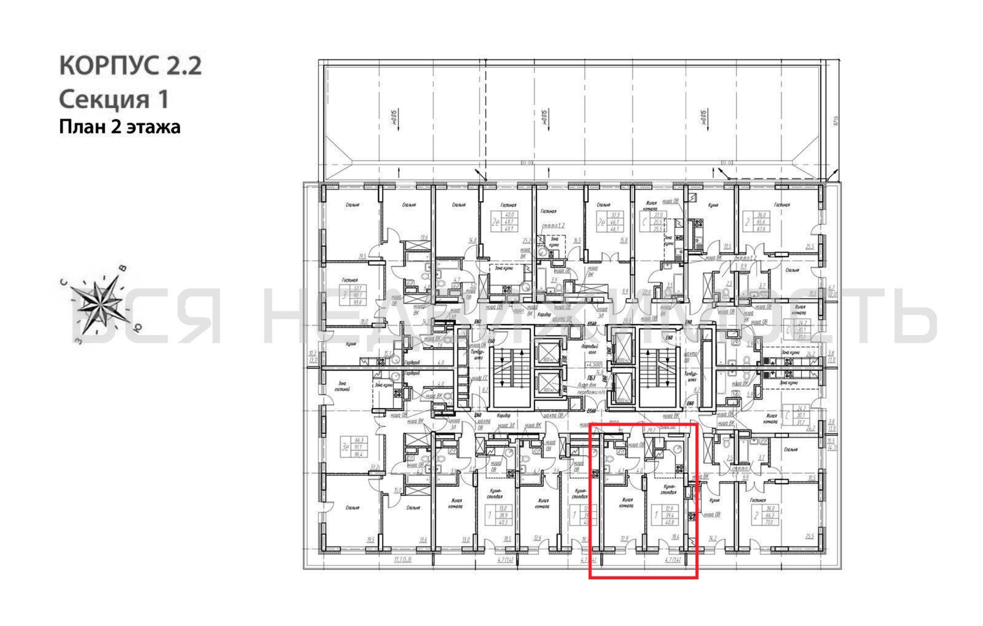
1-комнатная квартира, 40.80 м² 2/32 этаж ID объекта 100137066
Воронеж, Ворошилова ул., д. 10/1
Инфраструктура поблизости
Цена за наличные:
10 396 548 ₽
263 872 ₽/м²
Базовая цена:
12 076 800 ₽
Семейная ипотека
от 49 866 ₽/мес
Ипотека
от 121 610 ₽/мес
? Расчет цены приблизительный, за более точной информацией обращайтесь к менеджеру
КорпусПозиция 2.2 Венера
Срок сдачи2 кв 2028
Тип домаМонолитный
Этаж2/32
№ Квартиры9
Тип сделкиПервичная продажа
Общая площадь39.40 м²
Строительная площадь40.80 м²
Жилая площадь12.90 м²
Площадь кухни18.40 м²
Высота потолков2.72 м
ОтделкаЧистовая отделка
Покрытие полаЛаминат
СанузелСовмещенный
БалконБалкон
КладовкаНет
ЛифтДа
Изолированные комнатыДа
Онлайн показДа



