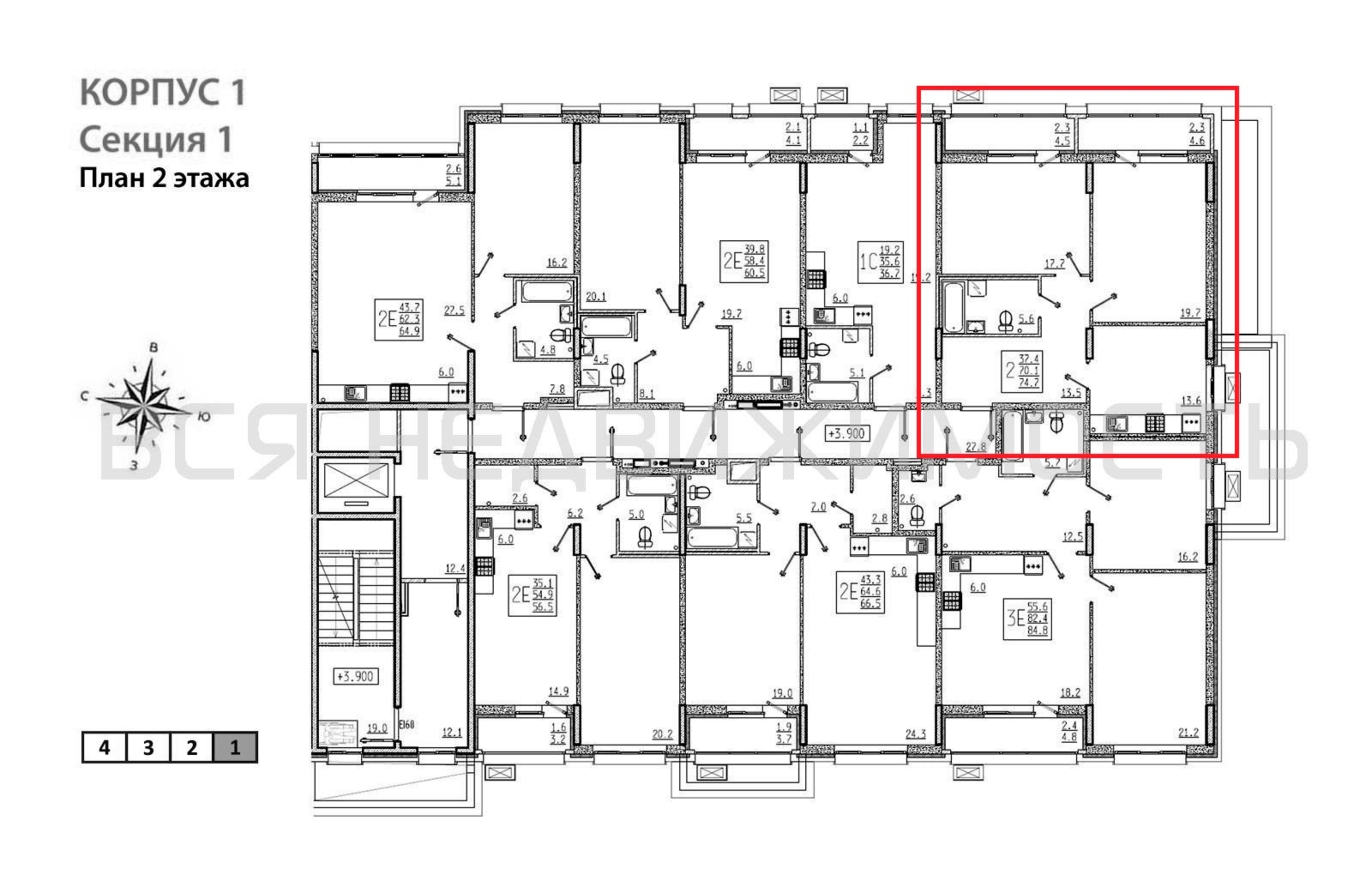
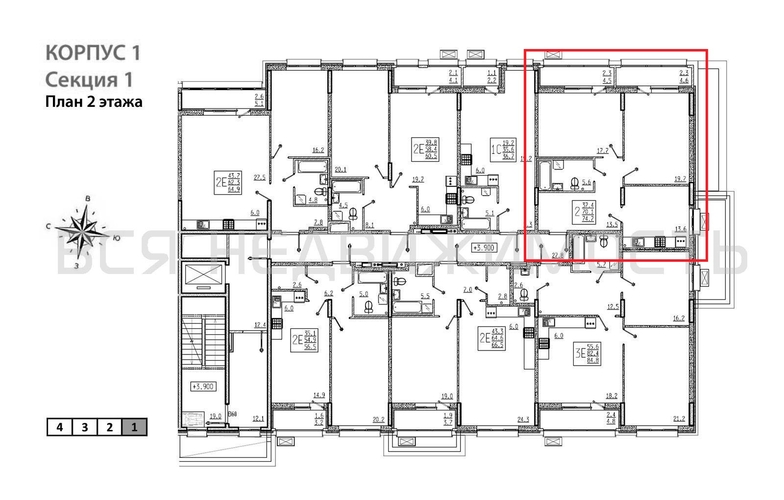
2-комнатная квартира, 74.70 м² 2/9 этаж ID объекта 100137078
Отрадное, Родниковая ул.,
Инфраструктура поблизости
Базовая цена:
7 171 200 ₽
102 300 ₽/м²
Семейная ипотека
от 34 396 ₽/мес
Ипотека
от 83 882 ₽/мес
? Расчет цены приблизительный, за более точной информацией обращайтесь к менеджеру
Тип сделкиПервичная продажа
Общая площадь70.10 м²
Строительная площадь74.70 м²
Жилая площадь37.40 м²
Площадь кухни13.60 м²
Высота потолков2.74 м
ОтделкаПредчистовая отделка
СанузелСовмещенный
Балкон2 лоджии
КладовкаНет
ЛифтДа
Изолированные комнатыДа
Онлайн показДа



