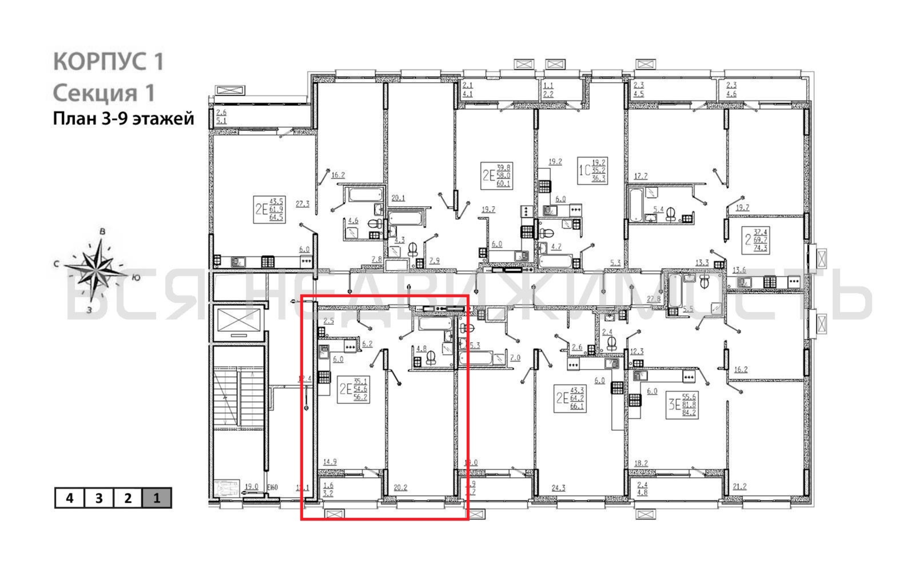
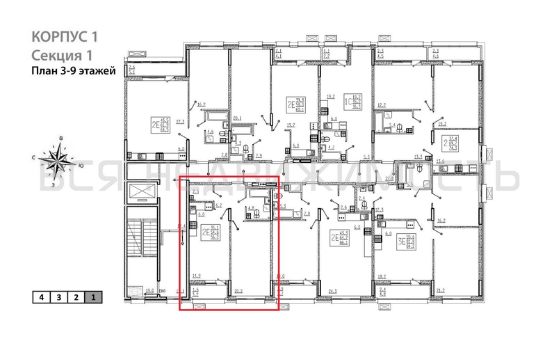
1-комнатная квартира, 56.20 м² 3/9 этаж ID объекта 100137088
Отрадное, Родниковая ул.,
Инфраструктура поблизости
Базовая цена:
5 282 800 ₽
96 755 ₽/м²
Семейная ипотека
от 25 338 ₽/мес
Ипотека
от 61 794 ₽/мес
? Расчет цены приблизительный, за более точной информацией обращайтесь к менеджеру
Тип сделкиПервичная продажа
Общая площадь54.60 м²
Строительная площадь56.20 м²
Жилая площадь20.20 м²
Площадь кухни20.90 м²
Высота потолков2.74 м
ОтделкаПредчистовая отделка
СанузелСовмещенный
КладовкаДа
ЛифтДа
Изолированные комнатыДа
Онлайн показДа



