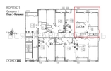
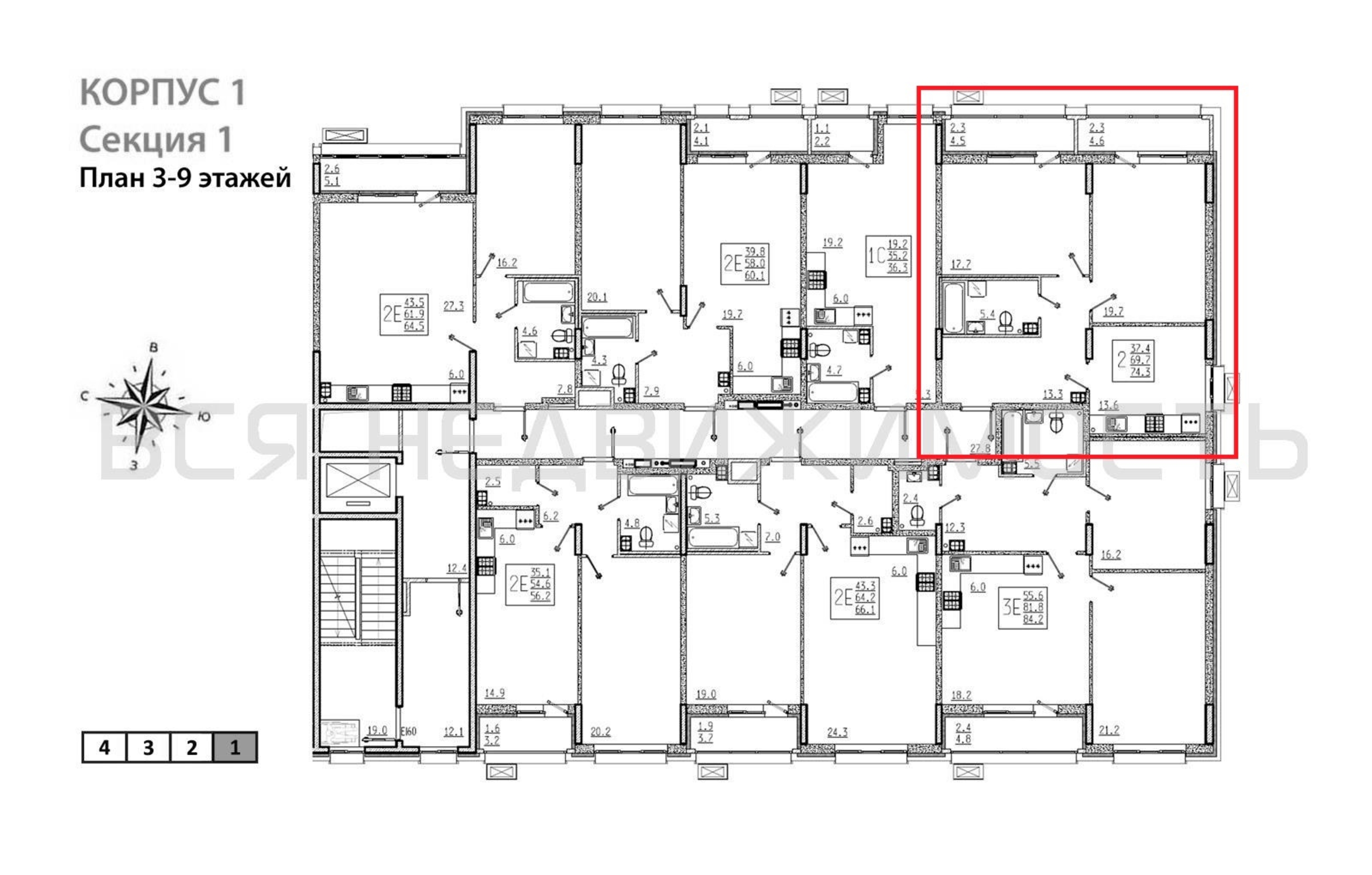
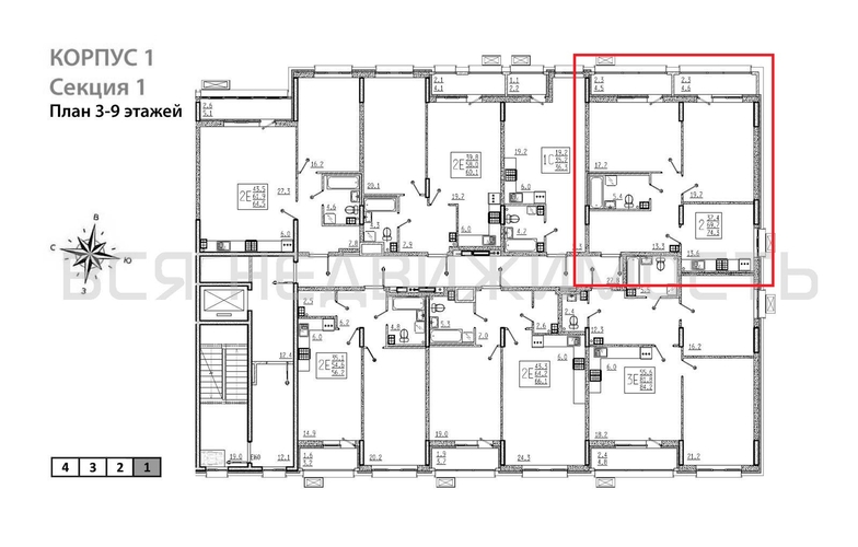
2-комнатная квартира, 74.30 м² 4/9 этаж ID объекта 100137092
Отрадное, Родниковая ул.,
Инфраструктура поблизости
Базовая цена:
7 132 800 ₽
102 336 ₽/м²
Семейная ипотека
от 34 212 ₽/мес
Ипотека
от 83 433 ₽/мес
? Расчет цены приблизительный, за более точной информацией обращайтесь к менеджеру
Тип сделкиПервичная продажа
Общая площадь69.70 м²
Строительная площадь74.30 м²
Жилая площадь37.40 м²
Площадь кухни13.60 м²
Высота потолков2.74 м
ОтделкаПредчистовая отделка
СанузелСовмещенный
Балкон2 лоджии
КладовкаНет
ЛифтДа
Изолированные комнатыДа
Онлайн показДа



