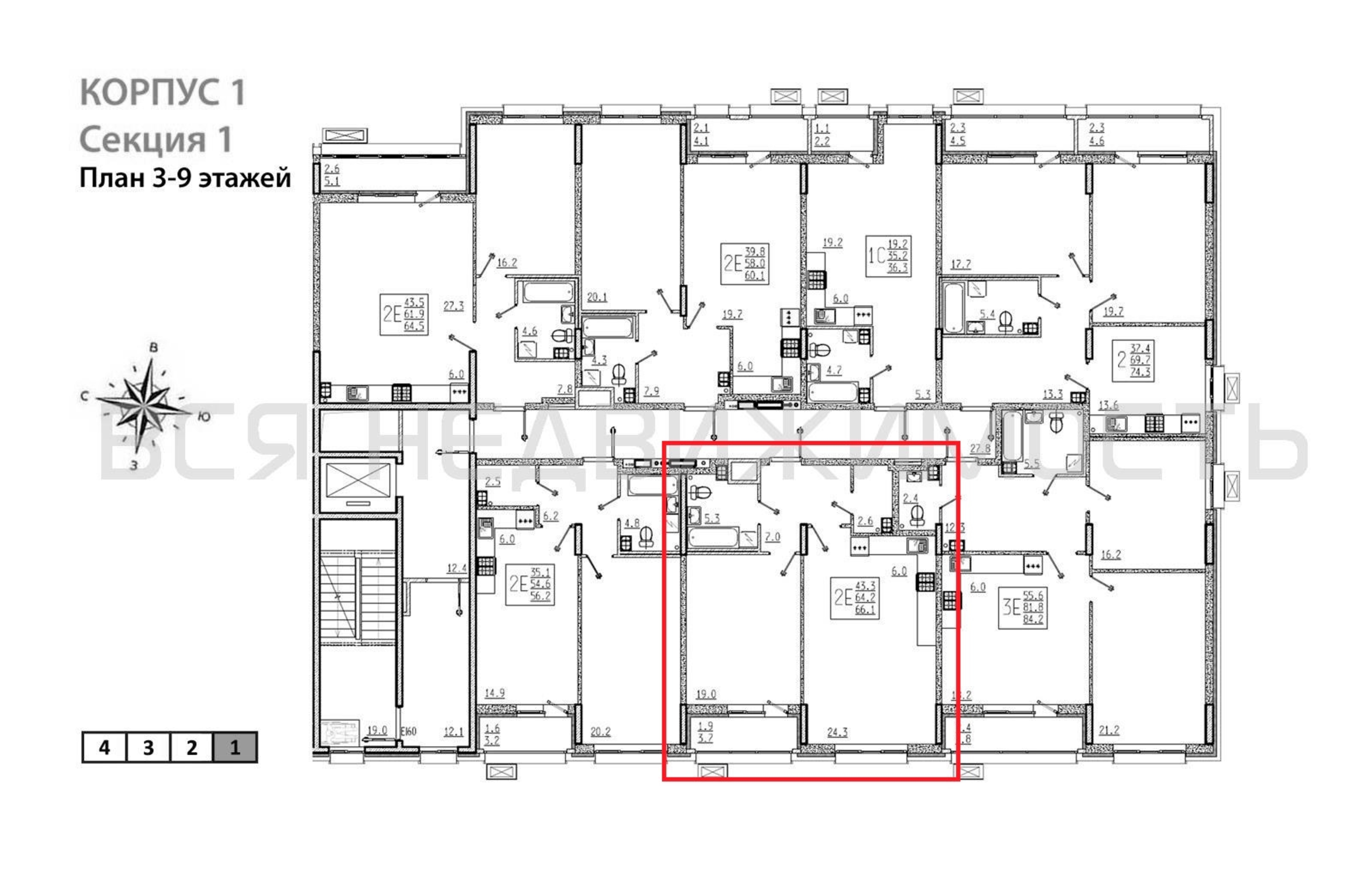
1-комнатная квартира, 66.10 м² 6/9 этаж ID объекта 100137108
Отрадное, Родниковая ул.,
Инфраструктура поблизости
Базовая цена:
6 015 100 ₽
93 693 ₽/м²
Семейная ипотека
от 28 851 ₽/мес
Ипотека
от 70 359 ₽/мес
? Расчет цены приблизительный, за более точной информацией обращайтесь к менеджеру
Тип сделкиПервичная продажа
Общая площадь64.20 м²
Строительная площадь66.10 м²
Жилая площадь19.00 м²
Площадь кухни30.30 м²
Высота потолков2.74 м
ОтделкаПредчистовая отделка
СанузелСовмещенный
КладовкаДа
ЛифтДа
Изолированные комнатыДа
Онлайн показДа



