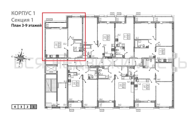
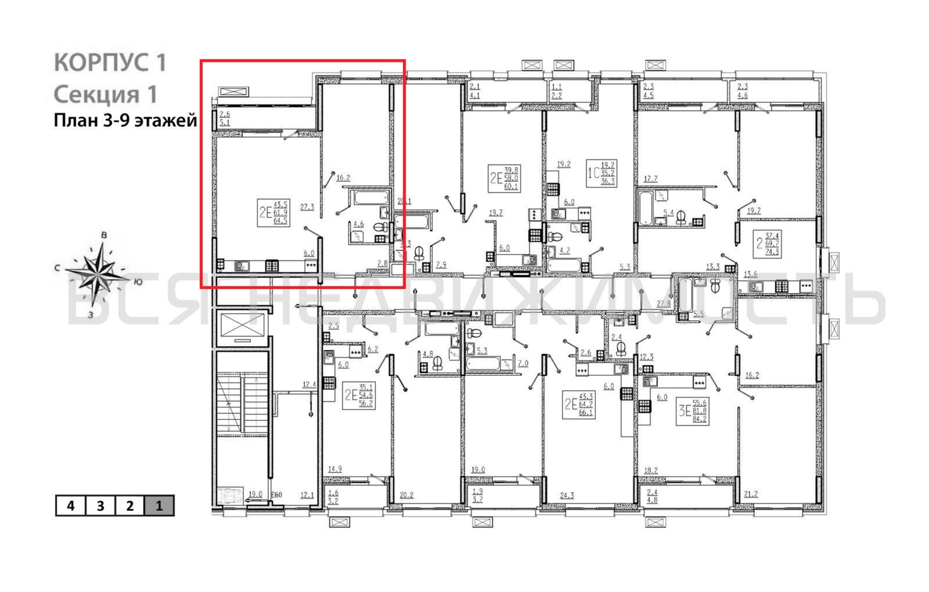
1-комнатная квартира, 64.50 м² 8/9 этаж ID объекта 100137117
Отрадное, Родниковая ул.,
Инфраструктура поблизости
Базовая цена:
5 869 500 ₽
94 822 ₽/м²
Семейная ипотека
от 28 152 ₽/мес
Ипотека
от 68 656 ₽/мес
? Расчет цены приблизительный, за более точной информацией обращайтесь к менеджеру
Тип сделкиПервичная продажа
Общая площадь61.90 м²
Строительная площадь64.50 м²
Жилая площадь16.20 м²
Площадь кухни33.30 м²
Высота потолков2.74 м
ОтделкаПредчистовая отделка
СанузелСовмещенный
КладовкаНет
ЛифтДа
Изолированные комнатыДа
Онлайн показДа



