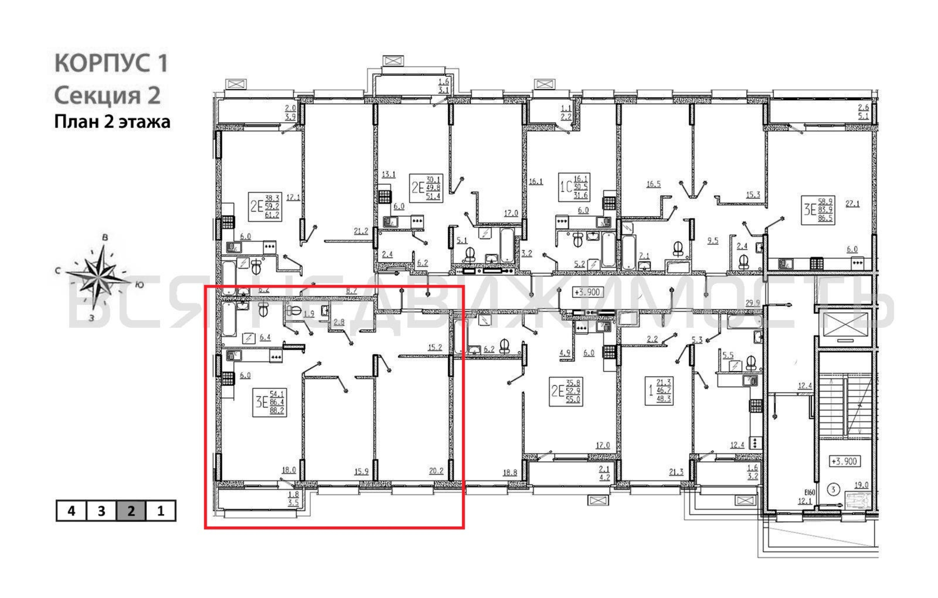
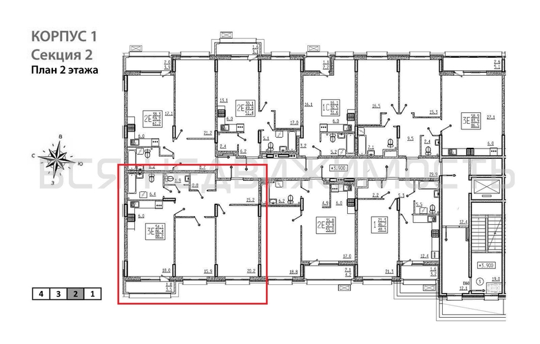
2-комнатная квартира, 88.20 м² 2/9 этаж ID объекта 100137133
Отрадное, Родниковая ул.,
Инфраструктура поблизости
Базовая цена:
8 026 200 ₽
92 896 ₽/м²
Семейная ипотека
от 38 497 ₽/мес
Ипотека
от 93 884 ₽/мес
? Расчет цены приблизительный, за более точной информацией обращайтесь к менеджеру
Тип сделкиПервичная продажа
Общая площадь86.40 м²
Строительная площадь88.20 м²
Жилая площадь36.10 м²
Площадь кухни24.00 м²
Высота потолков2.74 м
ОтделкаПредчистовая отделка
СанузелНесколько
КладовкаДа
ЛифтДа
Изолированные комнатыДа
Онлайн показДа



